알림

알림 내역

알림 신청내역/취소

대법원
물건내역
사건내역
기일내역
송달내역
현황조사
지도
사진보기
문서
매각기일공고문
매각물건명세서
감정평가서 M
등기부등본
전입세대열람원 M
건축물대장 M
분석
예상배당표 M
수익률분석 M
입찰가분석 M
조회수분석 M
인근지역통계 M
사이트
대법원
국토부 실거래가
토지이음
아실
네이버 단지정보
네이버 매물정보
호갱노노
부동산플래닛
로고 전주지방법원 본원 [경매3계] 2024타경36485
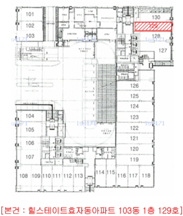
전북특별자치도 전주시 완산구 세내로 291, 103동 1층 129호 (효자동3가,힐스테이트효자동)

전북특별자치도 전주시 완산구 효자동3가 1540-3

주소복사
경매구분 임의경매
용도 단지내상가
토지 9.7678㎡(2.95평)
건물 46.5818㎡(14.09평)
감정가 350,000,000원
최저가 84,035,000원
보증금 8,403,500원 (10%)
청구액 229,297,193원
개시결정 2024년 06월 20일
감정일 2024년 07월 01일
배당종기 2024년 09월 23일
매각일 2025년 06월 23일
2024타경36485
2024타경36485
2024타경36485
2024타경36485
2024타경36485
2024타경36485
2024타경36485
2024타경36485
2024타경36485
2024타경36485
2024타경36485
2024타경36485
감정가
3억5000만원
2484만312원/평
낙찰가 75%
8700만원
배당종결 2025년 06월 23일
유찰 4회
유찰 4회
경매구분 임의경매
용도 단지내상가
토지 9.7678㎡(2.95평)
건물 46.5818㎡(14.09평)
감정가 350,000,000원
최저가 84,035,000원
보증금 8,403,500원 (10%)
청구액 229,297,193원
개시결정 2024년 06월 20일
감정일 2024년 07월 01일
배당종기 2024년 09월 23일
매각일 2025년 06월 23일
배당종결 2025년 06월 23일

당사자 내역

채무자겸소유자 주OOOOOOOO
채권자 송OOOOOOO
가압류권자 이OOOOOOOOOOOOOO
교부권자 북OOOOO
배당요구권자 류OO
교부권자 전OOOOOO
교부권자 국OOOOOOOOOOOOOO

기일 내역

2025.07.30(16:00)
매각
2025.06.30(16:00)
최고가매각허가결정
2025.06.23(10:00)
8700만원 매각
8403만5000원 최저가
2025.05.12(10:00)
1억2005만원 유찰
2025.03.24(10:00)
1억7150만원 유찰
2025.02.03(10:00)
2억4500만원 유찰
2024.12.09(10:00)
3억5000만원 유찰

매각공고

인수되는 권리/가처분(매각 명세서)

해당사항없음

지상권(매각 명세서)

해당사항없음

현황 조사(현황 조사서)

본건은 문이 잠겨져 있고, 출입문 등에 임대광고지가 존재하는 것으로 보아 공실로 보임.

점유 조사(현황 조사서)

[목록1]2회 현장에서 점유자를 만나지 못해 점유자가 확인되지 않으므로 정확한 점유권원 등은 별도의 확인이 필요함.

매각결과+

매각일자 / 결과 응찰자수 최고가 금액/응찰자명 차순위 금액

가장 빠른 경매 정보 플랫폼 경매마당
남들보다 먼저 정보를 선점하세요

간단한 로그인 후 바로 이용 가능합니다

bolt 대법원 보다 빠른 물건 정보
verified 가장 많은 경매 물건 제공
trending_up 월 5회 등기부 무료 열람

현황정보

매각목록

부동산 현황

1) 위치 및 주위환경 본건은 전북특별자치도 전주시 완산구 효자동3가 소재 "전북특별자치도청" 남동측 인근에 위 치하는 "힐스테이트효자동아파트 103동 1층 129호"로서, 주위는 아파트단지, 근린생활시설 등이 혼재하는 지역임. 2) 교통상황 본건까지 차량접근 가능하며 동측으로 버스승강장 소재 도로(세내로)가 진행함. 3) 건물의 구조 철근콘크리트구조 철근콘크리트지붕 2층 중 1층 129호로서, 외벽 : 돌붙임 및 강화유리 등 마감, 내벽 : 몰탈 등 마감, 바닥 : 타일 등 마감임. 4) 이용상태 점포(공실)임. 5) 설비내역 공용 위생 급.배수설비, 화재탐지 및 경보설비, 승강기설비 등이 되어있음. 6) 토지의 형상 및 이용상태 사다리형의 토지로서 지반 평탄한 주상용 건부지임. 7) 인접 도로상태등 동측, 남측으로 폭 약20미터, 서측으로 폭 약12미터 포장도로와 접하며, 북측으로 폭 약12미 터 인도가 진행함. 8) 토지이용계획 및 제한상태 중심상업지역, 방화지구, 지구단위계획구역(서부신시가지), 소로1류(폭 10m-12m)(접합), 중 로1류(폭 20m-25m)(접합), 중로3류(폭 12m-15m)(접합) 가축사육제한구역(주거밀집지역)<가축 분뇨의 관리 및 이용에 관한 법률>임. 9) 공부와의 차이 없음. 10) 기타참고사항(임대관례 및 기타) - 임대관계 : 미상임. - 기 타 : 없음.

주변 입주 예정

거리 단지명 공급년월 세대 수
※ 해당 자료는 한국부동산원 청약홈 자료에 근거하며, 인근 5km 이내의 물건을 기준으로 산정되었습니다.

등기

등기부현황

채권합계 1,527,810,000원(2건)
등기일자 권리종류 권리자/채권액 권리
2018-08-01
소유자 주OOOOOOOOOOOOO OO
단독소유 -
2020-01-16
(을3)
근저당권설정 송OOOOOOO OO
말소기준 등기 261,600,000원
2024-04-12
(갑7)
가압류 이OOOOOOOOOOOOO OO
- 1,266,214,339원
2024-06-20
(갑8)
임의경매개시결정
(2024타경36485)
송OOOOOOO OO
경매기입 등기 229,297,193원
2024-07-10
(갑9)
압류 국OOOOOOO OO
- -
2024-10-10
(갑10)
압류 북OOOOOO OO
- -
2024-12-02
(갑11)
압류 전OO OO
- -
더보기
※ 신규 발급등기의 분석자료 반영에는 최대 1일까지 소요될수 있습니다.(등기분석,임차인분석,분석노트 등)

임차인

매각물건 명세서

구분 법원 사건번호 작성일자 매각명세서
1 전주지법 2024타경36485[1] 2025. 5. 23.
2 전주지법 2024타경36485[1] 2024.11.18
구분 법원/
사건번호
작성일자 매각명세서
1 전주지법
2024타경36485[1]
2025. 5. 23.
2 전주지법
2024타경36485[1]
2024.11.18

인수되는 권리/가처분(매각 명세서)

해당사항없음

지상권(매각 명세서)

해당사항없음

임차인현황

임차인 보증금/차임 전입/확정/배당 대항력
매각물건명세서상 임차인이 존재하지 않습니다.

현황 조사서

조사일시

2024년06월26일17시35분 / 2024년06월27일11시55분

부동산의 현황

본건은 문이 잠겨져 있고, 출입문 등에 임대광고지가 존재하는 것으로 보아 공실로 보임.

점유 조사

[목록1]2회 현장에서 점유자를 만나지 못해 점유자가 확인되지 않으므로 정확한 점유권원 등은 별도의 확인이 필요함.

조사일시

2024년06월26일17시35분 / 2024년06월27일11시55분

부동산의 현황

본건은 문이 잠겨져 있고, 출입문 등에 임대광고지가 존재하는 것으로 보아 공실로 보임.

점유 조사

[목록1]2회 현장에서 점유자를 만나지 못해 점유자가 확인되지 않으므로 정확한 점유권원 등은 별도의 확인이 필요함.

미납관리비 조사내역

확인일자 미납금액 관리소번호 메모

※ 해당 정보는 참고용으로 제공되며 입찰 전 반드시 관리사무소를 통해 직접 확인하시기 바랍니다.

시세분석

인근 낙찰사례

기타

전문가

관할법원 (입찰장소)

전주지방법원 본원

경매3계 : 063-259-5438

전북 전주시 덕진구 만성동 1258-3 주소복사

Q&A

Q. 대법원경매가 무엇인가요?누구나 입찰에 참여할 수 있나요?

경매채무자(빌린 자)가 채무를 갚지 않았을 때 채권자(빌려준 자)의 신청으로 대법원이 채무자의 재산을 대신 매각하는 과정을 말합니다.

법원은 감정인에게 자산을 평가하게 한 후, 최저가를 정하여 그 금액 이상으로 입찰한 입찰자 중 최고가 매수인을 결정합니다.

대법원의 주관하에 국민 모두가 참여할 수 있습니다.

Q. 경매 입찰은 어떻게 하나요?누구나 입찰에 참여할 수 있나요?

1. 입찰하시고자 하는 경매물건을 정하신 후, 입찰하시고자 하는 입찰가를 최저가 이상으로 정합니다.

2. 해당 물건의 매각기일에 직접 관할법원에 방문하셔서 법원내에 비치된 입찰서를 작성하신 후 입찰하시면 됩니다.

TIP! 법원에 가실 때에는 입찰보증금(최저가의 10~30%)과 신분증을 지참하여 방문하세요.

Q. 용어가 너무 어려워서 내용을 이해하기 어려워요누구나 입찰에 참여할 수 있나요?

매각기일
매각기일은 경매 법원이 부동산에 대하여 매각 입찰을 진행하는 날을 말합니다.

유찰
매각 기일에 매수하고자 하는 사람이 없어 매각되지 않아 무효가 되는 것을 유찰이라고 합니다.

최저 매각 가격
최초 경매를 진행할때 감정인이 평가한 가격을 기준으로 책정한 금액이며 입찰자는 최저 매각 가격과 동일하거나 이상의 금액으로 입찰해야 합니다. 매각 기일에 있어 입찰자가 없어 유찰되면 통상 20~30% 저감된 금액이 다음 최저 매각 가격이 됩니다.

매수 보증금
경매 물건을 매수하고자 하는사람은 최저 매각 가격의 10분의 1(다르게 정해질 수 있음)에 해당하는 보증금액을 입찰표와 함께 집행관에게 제출하는 방법으로 제공합니다. 매각 절차가 종결된 후 집행관은 최고가 매수신고인이나 차순위매수신고인 이외의 매수신청인에게는 즉시 매수 보증금을 반환해 줍니다.

더 많은 내용을 알고 싶다면 경매마당 학습하기 코너에 준비된 용어설명을 이용해보세요.

경매정보는 법원자료와 일치하도록 하였으나 권리사항변동, 입력착오 등의 원인으로 사실과 다를 수 있습니다. 이용약관에 의거 면책조건으로 제공됨을 알리며, 경매입찰시 반드시 관련 공부를 재확인하시기 바랍니다.

PC버전으로 보기