알림

알림 내역

알림 신청내역/취소

로고 제주지방법원 본원 [경매4계] 2020타경10956
제주특별자치도 제주시 애월읍 항몽로 134 (101동) 외 1개 동

제주특별자치도 제주시 애월읍 상귀리 528-1

주소복사
경매구분 임의경매
용도 상가
토지 2582㎡(781.1평)
건물 1831.7㎡(554.1평)
감정가 4,137,251,800원
최저가 2,896,076,000원
보증금 289,610,000원 (10%)
청구액 2,224,959,825원
개시결정 2020년 12월 17일
감정일 2020년 12월 31일
배당종기 2021년 03월 22일
매각일 2022년 12월 06일
2020타경10956
2020타경10956
2020타경10956
2020타경10956
2020타경10956
2020타경10956
2020타경10956
2020타경10956
2020타경10956
2020타경10956
2020타경10956
2020타경10956
2020타경10956
2020타경10956
2020타경10956
2020타경10956
2020타경10956
2020타경10956
2020타경10956
2020타경10956
2020타경10956
2020타경10956
2020타경10956
2020타경10956
2020타경10956
2020타경10956
2020타경10956
2020타경10956
2020타경10956
감정가
41억3725만1800원
낙찰가 15%
35억1120만99원
배당종결 2022년 12월 06일
유찰 3회유치권
유찰 3회유치권
경매구분 임의경매
용도 상가
토지 2582㎡(781.1평)
건물 1831.7㎡(554.1평)
감정가 4,137,251,800원
최저가 2,896,076,000원
보증금 289,610,000원 (10%)
청구액 2,224,959,825원
개시결정 2020년 12월 17일
감정일 2020년 12월 31일
배당종기 2021년 03월 22일
매각일 2022년 12월 06일
배당종결 2022년 12월 06일

당사자 내역

소유자 이OO
채무자겸소유자 이OO
채권자 한OO
채권자 한OO
채권자 한OOOOOOO
승계인 웰OOOOOOOOOOOOOO
가압류권자 주OOOOOOOOOOOO
배당요구권자 정OO
배당요구권자 한OO
근저당권자 김OO
근저당권자 장OO
근저당권자 이OO
근저당권자 백OO
압류권자 신OOOOO
압류권자 한OO
압류권자 김OO
교부권자 국OOOOOOOOOOOOO
압류권자 한OOO
압류권자 신OOOOOOOOOOOOOOOOO
교부권자 국OOOOOOO
교부권자 제OOOOOO
교부권자 국OOOOOOOOOOOOO
교부권자 제OOOOOOOOOOO
압류권자 제OOOOOOOOOOO
교부권자 국OOOOOOO
임차인 김OO
근저당권부질권자 주OOOOOOOOOO
임차인 김OO
근저당권부질권자 주OOOOOOOOOO
임차인 이OO
임차인 서OO
임차인 신OO
임차인 장OO
임차인 김OO
압류권자 한OO
근저당권자 김OO
근저당권자 정OO
근저당권자 장OO
근저당권자 이OO
근저당권자 주OOOOOOOO
가압류권자 서OOOOOOOOO
압류권자 국OOOOOOOOOOOOO
배당요구권자 한OO

기일 내역

2023.01.19
납부 (2023.01.17)
2022.12.13
최고가매각허가결정
2022.12.06
35억1120만99원 매각
28억9607만6000원 최저가
2022.11.01
41억3725만1800원 유찰
2022.07.19
기일변경
2022.06.14
40억1420만7220원 유찰
2022.01.11
기일변경
2021.09.13
기일변경
2021.08.09
39억5586만6220원 유찰
2021.07.05
기일변경

공고 내용 수정(2022년06월10일)

다음 내역을 추가함 비고란 6.항에 유치권 채권금액은 1,830,000,000원 이상이라는 2022.6 .10.자 유치권금액변경신고서가 접수되었다라는 내용 추가함

물건 비고(공고문)

1. 일괄매각임. 2. 제시외 건물(목록2-1 내지 2-7) 및 조경수 포함 평가하고, 일부 제시외 건물(컨테이너 창고 27.0㎡)은 매각 제외함

인수되는 권리/가처분(매각 명세서)

해당사항없음

지상권(매각 명세서)

해당사항없음

물건 비고(매각 명세서)

1. 일괄매각임.
2. 제시외 건물(목록 2-1 내지 2-7) 및 조경수 포함 평가함
3. 일부 제시외 건물(창고 컨테이너 27.0m2)매각에서 제외
4. 제시외 건물 중 목록 2-6, 2-7 및 컨테이너 창고는 현황조사서상 신용대가 설치했다고 하였고, 소유자 이다현 제출의
2021.12.23.자 감정보완명령신청서 및 2022.1.13.자 보정서상 소유자 소유라고 주장함
5. 등기사항전부증명서 및 일반건축물대장상 목록 2. 3.의 소재지는 제주시 애월읍 상귀리 528-1, 529-2, 537-1이나, 토지대장
상 2019. 8. 20.자로 토지 합병되어 현황 소재지는 제주시 애월읍 상귀리 528-1임. 6. 2021. 8. 5. 주식회사 대산종합건설로부터 공사대금 및 필요비, 유익비 등 330.000.000원에 대하여 유치권신고 및 배당요구
서, 유치권 채권금액은 1,830,000,000원 이상이라는 2022.6 .10.자 유치권금액변경신고서가 각 접수되었으나 성립여부 불분명.
7. 위 유치권신고에 대하여 유치권 신고자는 이 사건 부동산을 점유하지 않는다는 취지의 2021. 9. 30.자 경매신청 채권자의
승계인 웰릭스에프앤아이대부 주식회사의 유치권 배제 신청서가 제출됨
8. 위 6.항 유치권 신고에 대하여 유치권자는 소유자로부터 공사대금등을 지급 받았으므로 유치권을 포기한다는 2022.11.30.자
유치권 권리 포기서를 제출함.

현황 조사(현황 조사서)

본건(상귀리 528-1)
-대지(일부 지상에 조경수가 식재되어 있음)
위 지상에 제시건물
가.철근콘크리트구조 평슬래브지붕 4층 제2종근린생활시설
나.철근콘크리트구조 경사슬래브위 징크지붕 4층 단독주택
제시외 건물
ㄱ.경량철골조 판넬지붕 단층 비가림
ㄴ.경량철골조 판넬지붕 단층 작업장
ㄷ.경량철골조 판넬지붕 단층 비가림
ㄹ.경량철골조 판넬지붕 단층 창고
ㅁ.목조 목재지붕 휴게실(`가` 옥상 소재)
ㅂ.경량철골조 판넬지붕 단층 창고 및 비가림
ㅅ.경량철골조 판넬지붕 저온창고
ㅇ.철재 콘테이너 창고(이동이 용이 함)
등이 건립되어 있고 건물의 구조, 면적 등 정확한
사항은 감정평가를 요함.
*본건 토지(상귀리 528-1)는 토지대장 상 2020년 8월20일
`제주시 애월읍 상귀리 529-2, 537-1` 번과 합병되어 있음.
-위 임대차관계조사서는 소유자 이다현 및 임차인 신용대, 김관호,
김태성 진술에 의하여 조사하였으며, 제시외 건물(ㅂ,ㅅ,ㅇ)은
신용대가 시설하였다고 진술하였음.
-임차인 김관호는 위와 같이 임대차계약을 하고
제시건물(가) 4층403호에 신용대와 같이 점유, 사용하고
있다고 김관호 및 신용대가 각 진술하였음.

점유 조사(현황 조사서)

[목록1]-별지 임대차관계조사서의 내용과 같이 임대차 조사된 부분 외에는 소유자가 점유, 사용 [제시건물(가) 4층 402호] 하고 있다고 소유자 이다현이 진술하였음. -조사일(2020년 12월22일)현재 소유자 이다현외 2명이 전입세대주로 등재되어 있으며, 조사일(2020년 12월23일)현재 상가건물임대차 현황서에 이성주 외 5명이 임차인으로 등재되어 있으나 임차인 이신비(대호해물가든)는 임대차관계 종료되어 보증금을 돌려받고 이사 갔고 김태성은 사업자등록을 내기 위해서 형식상 등재되어 있다고 소유자 이다현 및 임차인 신용대, 김태성이 각 진술하였음.[목록2]-별지 임대차관계조사서의 내용과 같이 임대차 조사된 부분 외에는 소유자가 점유, 사용 [제시건물(가) 4층 402호] 하고 있다고 소유자 이다현이 진술하였음. -조사일(2020년 12월22일)현재 소유자 이다현외 2명이 전입세대주로 등재되어 있으며, 조사일(2020년 12월23일)현재 상가건물임대차 현황서에 이성주 외 5명이 임차인으로 등재되어 있으나 임차인 이신비(대호해물가든)는 임대차관계 종료되어 보증금을 돌려받고 이사 갔고 김태성은 사업자등록을 내기 위해서 형식상 등재되어 있다고 소유자 이다현 및 임차인 신용대, 김태성이 각 진술하였음.[목록3]-별지 임대차관계조사서의 내용과 같이 임대차 있다고 임차인 김태성 및 소유자 이다현이 진술하였음. -조사일(2020년 12월22일)현재 이귀옥이 2명이 전입세대주로 등재되어 있었음. -김태성 진술에 의하면 이귀옥은 김태성의 배우자로 제시건물(나) 4층 현장표시 401호에 같이 거주하고 이갑무는 김태성의 직원으로 임대차관계 없이 무상으로 제시건물(나) 3층 현장표시 301호에 거주하며 제시건물(나) 1층은 김태성의 개인사무실로 이용 중이고 나머지 부분은 공실로 사람이 거주하지 않는다고 함.

매각결과+

매각일자 / 결과 응찰자수 최고가 금액/응찰자명 차순위 금액
부동산
등기
임차인
그 외

부동산

매각목록

※ 건축물 도면은 ‘건축물 대장의 기재 및 관리에 관한 규칙’ 에 따라 현재 경매가 진행중인 물건에만 제공됩니다.
※ 지분물건의 경우 면적은 지분에 해당하는 면적이 아닌 전체 면적으로 표기됩니다

감정평가

감정평가서 요약

1.토지감정요항표 1) 위치 및 주위환경 대상물건은 제주특별자치도 제주시 애월읍 상귀리 소재 "제주서부경찰서" 남동측 인근에 위치하며, 주위는 단독주택, 농경지 등이 혼재하는 농촌 취락지대로서, 전반적인 주위환경은 보통임. 2) 교통상황 본건까지 차량 출입이 가능하고, 인근에 노선버스정류장이 소재하여 제반 교통상황은 보통임 3) 형태 및 이용상태 인접지 및 도로 대비 대체로 등고 평탄한 부정형의 토지로서, 주상용 건부지로 이용중임. 4) 인접 도로상태 동측으로 노폭 약 10미터 아스콘 포장도로에 접함. 5) 토지이용계획 및 제한상태 "감정평가액의 산출근거 및 결정의견"상 공법상 제한사항(토지이용계획사항) 참조. 6) 제시목록 외의 물건 후첨 "지적 및 건물개황도" 참조. 7) 공부와의 차이 -. 8) 기타참고사항(임대관례 및 기타) -. 2.건물감정평가요항표 1) 건물의 구조 일련번호 2) 철근콘크리트구조 평슬래브지붕 지하1층, 지상4층 건물로서, (사용승인일자: 2018.04.13)외벽: 스타코, 화강석, 제주석, 대리석 마감 등, 내벽: 페인팅, 실내인테리어, 벽지 마감 등, 바닥: 바닥타일, 강마루 등, 창호: 스테인레스 및 시스템 창호 등임. 일련번호 3) 철근콘크리트구조 경사슬래브 징크지붕 지상4층 건물로서, (사용승인일자: 2019.08.14)외벽: 화강석, 스타코 마감 등, 내벽: 페인팅, 벽지 마감 등, 바닥: 몰탈, 강마루 등, 창호: 스테인레스 및 시스템 창호 등임. 2) 이용상태 일련번호 2) 근린생활시설(1-3층) 및 주택(4층)임.일련번호 3) 근린생활시설(1층) 및 주택(2-4층)임. 3) 설비내역 위생 및 급·배수설비, 승강기설비, 화재탐지설비, 스프링클러설비[일련번호 2)], 가스보일러에 의한 바닥난방설비[주택 부분] 등이 되어 있음. 4) 부합물 및 종물 후첨 "지적 및 건물개황도" 참조. 5) 공부와의 차이 등기사항전부증명서 및 일반건축물대장상 일련번호 2,3)의 소재지는‘상귀리 528-1, 529-2, 537-1’이나, 토지대장상 2019.08.20. 자로 토지 합병되어 현황 소재지는 "상귀리 528-1’임. 6) 기타참고사항(임대관례 및 기타) -.

주변 입주 예정

거리 단지명 공급년월 세대 수
※ 해당 자료는 한국부동산원 청약홈 자료에 근거하며, 인근 5km 이내의 물건을 기준으로 산정되었습니다.

등기

등기부현황

채권합계 3,961,400,000원(17건)
등기일자 권리종류 권리자/채권액 권리
2018-07-10
소유자 이다현 (소유자)
단독소유 -
2018-07-10
(을2)
근저당권설정 한마음새마을금고 소멸
말소기준 등기 360,000,000원
2020-12-18
(을2-2)
근저당권이전 웰릭스에프앤아이대부주식회사 소멸
- -
2021-03-31
(을2-3)
근질권 주식회사모아저축은행외1명 소멸
- 360,000,000원
2018-07-10
(을3)
근저당권설정 한마음새마을금고 소멸
- 264,000,000원
2020-12-18
(을3-2)
근저당권이전 웰릭스에프앤아이대부주식회사 소멸
- -
2021-03-31
(을3-3)
근질권 주식회사모아저축은행외1명 소멸
- 264,000,000원
2018-07-10
(을4)
근저당권설정 한마음새마을금고 소멸
- 180,000,000원
2020-12-18
(을4-4)
근저당권이전 웰릭스에프앤아이대부주식회사 소멸
- -
2021-03-31
(을4-5)
근질권 주식회사모아저축은행외1명 소멸
- 180,000,000원
2018-07-10
(을5)
근저당권설정 한마음새마을금고 소멸
- 320,000,000원
2020-12-18
(을5-4)
근저당권이전 웰릭스에프앤아이대부주식회사 소멸
- -
2021-03-31
(을5-5)
근질권 주식회사모아저축은행외1명 소멸
- 320,000,000원
2019-07-23
(을9)
근저당권설정 한마음새마을금고 소멸
- 800,000,000원
2020-12-18
(을9-3)
근저당권이전 웰릭스에프앤아이대부주식회사 소멸
- -
2021-03-31
(을9-4)
근질권 주식회사모아저축은행외1명 소멸
- 800,000,000원
2019-09-03
(을16)
근저당권설정 한마음새마을금고 소멸
- 420,000,000원
2020-12-18
(을16-1)
근저당권이전 웰릭스에프앤아이대부주식회사 소멸
- -
2021-03-31
(을16-2)
근질권 주식회사모아저축은행외1명 소멸
- 420,000,000원
2019-09-03
(을19)
근저당권설정 한마음새마을금고 소멸
- 120,000,000원
2020-12-18
(을19-1)
근저당권이전 웰릭스에프앤아이대부주식회사 소멸
- -
2021-03-31
(을19-2)
근질권 주식회사모아저축은행외1명 소멸
- 120,000,000원
2019-09-03
(을20)
근저당권설정 한마음새마을금고 소멸
- 36,000,000원
2020-12-18
(을20-1)
근저당권이전 웰릭스에프앤아이대부주식회사 소멸
- -
2021-03-31
(을20-2)
근질권 주식회사모아저축은행외1명 소멸
- 36,000,000원
2019-09-03
(을21)
근저당권설정 김관호 소멸
- 182,000,000원
2022-06-14
(을21-1)
근저당권이전 백수호 소멸
- -
2019-09-03
(을22)
근저당권설정 김기석 소멸
- 32,500,000원
2020-02-21
(을24)
근저당권설정 장윤석 소멸
- 300,000,000원
2020-02-21
(을25)
근저당권설정 신용대 소멸
- 400,000,000원
2020-05-12
(을25-1)
근저당권이전 박금자 소멸
- -
2020-06-12
(을25-2)
근저당권이전 양수정 소멸
- -
2020-08-11
(을25-3)
근저당권이전 이신비 소멸
- -
2020-02-24
(을27)
근저당권설정 주식회사제주은행 소멸
- 120,000,000원
2020-04-01
(갑6)
가압류 주식회사코리아환경스마트 소멸
- 11,900,000원
2020-06-15
(을28)
근저당권설정 장도윤 소멸
- 40,000,000원
2020-08-31
(을29)
근저당권설정 이신비 소멸
- 325,000,000원
2020-09-01
(갑9)
압류 제주시 소멸
- -
2020-11-06
(갑10)
가압류 서울보증보험주식회사 소멸
- 50,000,000원
2020-12-18
(갑11)
임의경매개시결정
(2020타경10956)
한마음새마을금고 소멸
경매기입 등기 2,224,959,825원
2020-12-18
(갑12)
강제경매개시결정
(2020타경10802)
김석현 소멸
경매기입 등기
2021-01-13
(갑13)
강제경매개시결정
(2021타경20295)
한승욱외1명 소멸
경매기입 등기
2021-06-22
(갑14)
압류 제주세무서장 소멸
- -
더보기 더보기
※ 신규 발급등기의 분석자료 반영에는 최대 1일까지 소요될수 있습니다.(등기분석,임차인분석,분석노트 등)

임차인

매각물건 명세서

구분 법원 사건번호 작성일자 매각명세서
1 제주지법 2020타경10956[1] 2022.12.01
구분 법원/
사건번호
작성일자 매각명세서
1 제주지법
2020타경10956[1]
2022.12.01

인수되는 권리/가처분(매각 명세서)

해당사항없음

지상권(매각 명세서)

해당사항없음

물건 비고(매각 명세서)

1. 일괄매각임.
2. 제시외 건물(목록 2-1 내지 2-7) 및 조경수 포함 평가함
3. 일부 제시외 건물(창고 컨테이너 27.0m2)매각에서 제외
4. 제시외 건물 중 목록 2-6, 2-7 및 컨테이너 창고는 현황조사서상 신용대가 설치했다고 하였고, 소유자 이다현 제출의
2021.12.23.자 감정보완명령신청서 및 2022.1.13.자 보정서상 소유자 소유라고 주장함
5. 등기사항전부증명서 및 일반건축물대장상 목록 2. 3.의 소재지는 제주시 애월읍 상귀리 528-1, 529-2, 537-1이나, 토지대장
상 2019. 8. 20.자로 토지 합병되어 현황 소재지는 제주시 애월읍 상귀리 528-1임. 6. 2021. 8. 5. 주식회사 대산종합건설로부터 공사대금 및 필요비, 유익비 등 330.000.000원에 대하여 유치권신고 및 배당요구
서, 유치권 채권금액은 1,830,000,000원 이상이라는 2022.6 .10.자 유치권금액변경신고서가 각 접수되었으나 성립여부 불분명.
7. 위 유치권신고에 대하여 유치권 신고자는 이 사건 부동산을 점유하지 않는다는 취지의 2021. 9. 30.자 경매신청 채권자의
승계인 웰릭스에프앤아이대부 주식회사의 유치권 배제 신청서가 제출됨
8. 위 6.항 유치권 신고에 대하여 유치권자는 소유자로부터 공사대금등을 지급 받았으므로 유치권을 포기한다는 2022.11.30.자
유치권 권리 포기서를 제출함.

임차인현황

임차인 보증금/차임 전입/확정/배당 대항력
김경숙
(주거임차인 / 소액임차인)
점유부분:
401호 전부
보증:
15,000,000
차임:
-
전입: 2020-11-25
확정: 2020-04-14
배당: 2021-04-30
-
[현황조사]
김관호
(주거임차인)
점유부분:
제시건 물(가) 4층 중 현장표 시 403호 부분
보증:
보증금 1억2천만원
차임:
없음
전입: 미전입
확정: 미상
배당: -
-
김태성
(주거임차인)
점유부분:
102동 4층 501호
보증:
850,000,000
차임:
-
전입: 2019-11-19
확정: 2020-08-31
배당: 2021-03-17
-
[현황조사]
서숙희
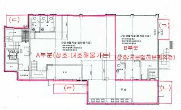
(휴게음식점(상호:세븐일레븐편의점)임차인)
점유부분:
제시건 물(가) 1층 중 B부분 및 제시외건물(ᄀ) 부분
보증:
-
차임:
월세 90만원
사업: 2020-10-08
확정: 미상
배당: -
-
[현황조사]
신용대
(일반음식점(상호:대호해물가든)임차인)
점유부분:
제시건 물(가) 1층 중 도면표 시 A부분 및 제시건 물(가) 2층 전부분 과 제시외 건물(ᄂ, ᄃ,ᄅ) 부분
보증:
보증금 7억원
차임:
없음
사업: 2020-01-22
확정: 미상
배당: -
-
[현황조사]
이성주
(저온창고임차인)
점유부분:
제시외 건물(ᄇ, ᄉ,ᄋ) 부분
보증:
보증금 5천만원
차임:
년세 8백만원
사업: 2020-02-12
확정: 미상
배당: -
-
장윤석
(기타임차인)
점유부분:
101동 3층 전부
보증:
300,000,000
차임:
-
전입: 2018-04-27
확정: -
배당: -
-

현황 조사서

조사일시

2021년01월06일 / 2021년02월05일

부동산의 현황

본건(상귀리 528-1)
-대지(일부 지상에 조경수가 식재되어 있음)
위 지상에 제시건물
가.철근콘크리트구조 평슬래브지붕 4층 제2종근린생활시설
나.철근콘크리트구조 경사슬래브위 징크지붕 4층 단독주택
제시외 건물
ㄱ.경량철골조 판넬지붕 단층 비가림
ㄴ.경량철골조 판넬지붕 단층 작업장
ㄷ.경량철골조 판넬지붕 단층 비가림
ㄹ.경량철골조 판넬지붕 단층 창고
ㅁ.목조 목재지붕 휴게실(`가` 옥상 소재)
ㅂ.경량철골조 판넬지붕 단층 창고 및 비가림
ㅅ.경량철골조 판넬지붕 저온창고
ㅇ.철재 콘테이너 창고(이동이 용이 함)
등이 건립되어 있고 건물의 구조, 면적 등 정확한
사항은 감정평가를 요함.
*본건 토지(상귀리 528-1)는 토지대장 상 2020년 8월20일
`제주시 애월읍 상귀리 529-2, 537-1` 번과 합병되어 있음.
-위 임대차관계조사서는 소유자 이다현 및 임차인 신용대, 김관호,
김태성 진술에 의하여 조사하였으며, 제시외 건물(ㅂ,ㅅ,ㅇ)은
신용대가 시설하였다고 진술하였음.
-임차인 김관호는 위와 같이 임대차계약을 하고
제시건물(가) 4층403호에 신용대와 같이 점유, 사용하고
있다고 김관호 및 신용대가 각 진술하였음.

점유 조사

[목록1]-별지 임대차관계조사서의 내용과 같이 임대차 조사된 부분 외에는 소유자가 점유, 사용 [제시건물(가) 4층 402호] 하고 있다고 소유자 이다현이 진술하였음. -조사일(2020년 12월22일)현재 소유자 이다현외 2명이 전입세대주로 등재되어 있으며, 조사일(2020년 12월23일)현재 상가건물임대차 현황서에 이성주 외 5명이 임차인으로 등재되어 있으나 임차인 이신비(대호해물가든)는 임대차관계 종료되어 보증금을 돌려받고 이사 갔고 김태성은 사업자등록을 내기 위해서 형식상 등재되어 있다고 소유자 이다현 및 임차인 신용대, 김태성이 각 진술하였음.[목록2]-별지 임대차관계조사서의 내용과 같이 임대차 조사된 부분 외에는 소유자가 점유, 사용 [제시건물(가) 4층 402호] 하고 있다고 소유자 이다현이 진술하였음. -조사일(2020년 12월22일)현재 소유자 이다현외 2명이 전입세대주로 등재되어 있으며, 조사일(2020년 12월23일)현재 상가건물임대차 현황서에 이성주 외 5명이 임차인으로 등재되어 있으나 임차인 이신비(대호해물가든)는 임대차관계 종료되어 보증금을 돌려받고 이사 갔고 김태성은 사업자등록을 내기 위해서 형식상 등재되어 있다고 소유자 이다현 및 임차인 신용대, 김태성이 각 진술하였음.[목록3]-별지 임대차관계조사서의 내용과 같이 임대차 있다고 임차인 김태성 및 소유자 이다현이 진술하였음. -조사일(2020년 12월22일)현재 이귀옥이 2명이 전입세대주로 등재되어 있었음. -김태성 진술에 의하면 이귀옥은 김태성의 배우자로 제시건물(나) 4층 현장표시 401호에 같이 거주하고 이갑무는 김태성의 직원으로 임대차관계 없이 무상으로 제시건물(나) 3층 현장표시 301호에 거주하며 제시건물(나) 1층은 김태성의 개인사무실로 이용 중이고 나머지 부분은 공실로 사람이 거주하지 않는다고 함.

1
소재지 제주특별자치도제주시애월읍상귀리528-1
점유인 이성주(임차인)
점유부분 제시외 건물(ㅂ,ㅅ,ㅇ) 부분(기타 - 저온창고)
점유기간 2020년 1월30일~2024년 1월29일
보증금/차임 보증금 5천만원/년세 8백만원
전입/확정일자 2020년 2월12일/미상
1
소재지 제주특별자치도제주시애월읍항몽로134(101동)
점유인 서숙희(임차인)
점유부분 제시건물(가) 1층 중 B부분 및 제시외 건물(ㄱ) 부분(기타 - 휴게음식점(상호:세븐일레븐편의점))
점유기간 2020년 9월25일~2024년 9월24일
보증금/차임 미상/월세 90만원
전입/확정일자 2020년 10월8일/미상
1
소재지 제주특별자치도제주시애월읍항몽로132(102동)
점유인 김태성(임차인)
점유부분 제시건물(나) 전부분(주거)
점유기간 2019년 11월18일~2020년 11월17일
보증금/차임 보증금 8억5천만원/미상
전입/확정일자 2019년 11월19일/2020년 8월31일 애월읍장 확정일자 제 491호
2
소재지 제주특별자치도제주시애월읍항몽로134(101동)
점유인 신용대(임차인)
점유부분 제시건물(가) 1층 중 도면표시 A부분 및 제시건물(가) 2층 전부분 과 제시외 건물(ㄴ,ㄷ,ㄹ) 부분(기타 - 일반음식점(상호:대호해물가든))
점유기간 2020년 1월16일~2026년 1월15일
보증금/차임 보증금 7억원/미상
전입/확정일자 2020년 1월22일/미상
3
소재지 제주특별자치도제주시애월읍항몽로134(101동)
점유인 장윤석(임차인)
점유부분 제시건물(가) 3층 전부분(기타 - 근린생활시설(상호:애월스크린골프))
점유기간 2018년 2월28일~2023년 2월27일
보증금/차임 보증금 3억원/미상
전입/확정일자 2018년 4월27일/미상
4
소재지 제주특별자치도제주시애월읍항몽로134(101동)
점유인 김경숙(임차인)
점유부분 제신건물(가) 4층 중 현장표시 401호 부분(주거)
점유기간 2020년 11월25일~2년
보증금/차임 보증금 1천5백만원/미상
전입/확정일자 2020년 11월25일/미상
5
소재지 제주특별자치도제주시애월읍항몽로134(101동)
점유인 김관호(임차인)
점유부분 제시건물(가) 4층 중 현장표시 403호 부분(주거)
점유기간 2018년 11월5일~만기미정
보증금/차임 보증금 1억2천만원/미상
전입/확정일자 미전입/미상

미납관리비 조사내역

확인일자 미납금액 관리소번호 메모

※ 해당 정보는 참고용으로 제공되며 입찰 전 반드시 관리사무소를 통해 직접 확인하시기 바랍니다.

시세

전문가

그외

관할법원 관할법원 (입찰장소)

제주지방법원 본원

경매4계 : 064-729-2000

제주특별자치도 제주시 이도이동 950-1 주소복사

Q&A Q&A

Q. 대법원경매가 무엇인가요?누구나 입찰에 참여할 수 있나요?

경매채무자(빌린 자)가 채무를 갚지 않았을 때 채권자(빌려준 자)의 신청으로 대법원이 채무자의 재산을 대신 매각하는 과정을 말합니다.

법원은 감정인에게 자산을 평가하게 한 후, 최저가를 정하여 그 금액 이상으로 입찰한 입찰자 중 최고가 매수인을 결정합니다.

대법원의 주관하에 국민 모두가 참여할 수 있습니다.

Q. 경매 입찰은 어떻게 하나요?누구나 입찰에 참여할 수 있나요?

1. 입찰하시고자 하는 경매물건을 정하신 후, 입찰하시고자 하는 입찰가를 최저가 이상으로 정합니다.

2. 해당 물건의 매각기일에 직접 관할법원에 방문하셔서 법원내에 비치된 입찰서를 작성하신 후 입찰하시면 됩니다.

TIP! 법원에 가실 때에는 입찰보증금(최저가의 10~30%)과 신분증을 지참하여 방문하세요.

Q. 용어가 너무 어려워서 내용을 이해하기 어려워요누구나 입찰에 참여할 수 있나요?

매각기일
매각기일은 경매 법원이 부동산에 대하여 매각 입찰을 진행하는 날을 말합니다.

유찰
매각 기일에 매수하고자 하는 사람이 없어 매각되지 않아 무효가 되는 것을 유찰이라고 합니다.

최저 매각 가격
최초 경매를 진행할때 감정인이 평가한 가격을 기준으로 책정한 금액이며 입찰자는 최저 매각 가격과 동일하거나 이상의 금액으로 입찰해야 합니다. 매각 기일에 있어 입찰자가 없어 유찰되면 통상 20~30% 저감된 금액이 다음 최저 매각 가격이 됩니다.

매수 보증금
경매 물건을 매수하고자 하는사람은 최저 매각 가격의 10분의 1(다르게 정해질 수 있음)에 해당하는 보증금액을 입찰표와 함께 집행관에게 제출하는 방법으로 제공합니다. 매각 절차가 종결된 후 집행관은 최고가 매수신고인이나 차순위매수신고인 이외의 매수신청인에게는 즉시 매수 보증금을 반환해 줍니다.

더 많은 내용을 알고 싶다면 경매마당 학습하기 코너에 준비된 용어설명을 이용해보세요.

경매정보는 법원자료와 일치하도록 하였으나 권리사항변동, 입력착오 등의 원인으로 사실과 다를 수 있습니다. 이용약관에 의거 면책조건으로 제공됨을 알리며, 경매입찰시 반드시 관련 공부를 재확인하시기 바랍니다.

PC버전으로 보기