알림

알림 내역

알림 신청내역/취소

로고 의정부지방법원 남양주지원 [경매6계] 2024타경1306
경기도 가평군 조종면 현등사길 55-271 (주건축물제1동) 외 15 필지 외 6개 동

경기 가평군 조종면 운악리 418-35

주소복사
경매구분 임의경매
용도 숙박시설
토지 5431㎡(1642.88평)
건물 746.9㎡(225.94평)
감정가 2,759,676,880원
최저가 2,759,676,880원
보증금 275,967,700원 (10%)
청구액 1,348,569,233원
개시결정 2024년 07월 29일
감정일 2024년 08월 14일
배당종기 2024년 10월 15일
매각일 2026년 03월 05일
2024타경1306
2024타경1306
2024타경1306
2024타경1306
2024타경1306
2024타경1306
2024타경1306
2024타경1306
2024타경1306
2024타경1306
2024타경1306
2024타경1306
2024타경1306
2024타경1306
2024타경1306
2024타경1306
2024타경1306
2024타경1306
2024타경1306
2024타경1306
2024타경1306
2024타경1306
2024타경1306
2024타경1306
2024타경1306
2024타경1306
2024타경1306
2024타경1306
2024타경1306
2024타경1306
2024타경1306
2024타경1306
2024타경1306
2024타경1306
2024타경1306
2024타경1306
2024타경1306
2024타경1306
2024타경1306
2024타경1306
2024타경1306
2024타경1306
2024타경1306
2024타경1306
2024타경1306
2024타경1306
2024타경1306
2024타경1306
2024타경1306
2024타경1306
2024타경1306
2024타경1306
2024타경1306
2024타경1306
2024타경1306
2024타경1306
2024타경1306
2024타경1306
2024타경1306
2024타경1306
2024타경1306
2024타경1306
2024타경1306
2024타경1306
2024타경1306
2024타경1306
2024타경1306
2024타경1306
감정가
27억5967만6880원
최저가
27억5967만6880원
공고 2026년 03월 05일 입찰 D-68일
유찰 1회선순위임차인토지지분
유찰 1회선순위임차인토지지분
경매구분 임의경매
용도 숙박시설
토지 5431㎡(1642.88평)
건물 746.9㎡(225.94평)
감정가 2,759,676,880원
최저가 2,759,676,880원
보증금 275,967,700원 (10%)
청구액 1,348,569,233원
개시결정 2024년 07월 29일
감정일 2024년 08월 14일
배당종기 2024년 10월 15일
매각일 2026년 03월 05일
공고 2026년 03월 05일 입찰 D-68일

당사자 내역

소유자 밸OOOOOOOOOOOOOOOOOOOOOOO
채무자겸소유자 주OOOOOOOO
채권자 농OOOOOOOOOOOOOOOOOOOOOOOOO
공유자 노OO
교부권자 포OOOO
교부권자 가OO
공유자 주OOOOOOOOO
공유자 임OO
공유자 임OO
공유자 한OO
공유자 이OO
공유자 윤OO
공유자 박OO
공유자 박OO
공유자 멍OOOOOOO
공유자 김OO
공유자 김OO
공유자 김OO
공유자 강OO
임차인 주OOOOOOOOOOO
임차인 더OOOOOOOOO
배당요구권자 근OOOOO
공유자 김OO
교부권자 남OOOOO
압류권자 가OO
가압류권자 근OOOOO
가압류권자 박OO
임차인 김OO
교부권자 가OO

기일 내역

2026.03.05(10:30)
27억5967만6880원 진행
2025.07.30(10:30)
기일변경
2025.06.25(10:30)
20억5887만4000원 유찰

물건 비고(공고문)

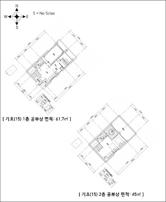
1. 일괄매각, 목록29.30.31.은 지분경매 2. 숙박시설(멍스빌리지풀빌라)임[감정평가서 참조]

물건 비고(매각 명세서)

1. 일괄매각
2. 숙박시설(멍스빌리지풀빌라)로 조사됨[감정평가서 참조]
* 건물중 목록10,12,15,18은 공부 및 현황 숙박시설, 목록19는 공부는 단독주택이나, 현황은 숙박시설임
* 토지중 목록9,11,14,16,18 숙박시설 건부지, 목록13은 도로, 목록 20,21은 나지(운동장, 주차장 등), 목록22는 도로, 목록23
은 나지로 이용중임

현황 조사(현황 조사서)

해당 각 건물은 멍1, 멍2, 멍3, 멍4, 멍5 표식이 외부에 부착되어 있음

점유 조사(현황 조사서)

[목록9]현장에 임하였으나, 불특정 다수인이 사용하는 멍이라는 숙박업소임
[목록10]현장에 임하였으나, 불특정 다수인이 사용하는 멍이라는 숙박업소임
[목록11]현장에 임하였으나, 불특정 다수인이 사용하는 멍이라는 숙박업소임
[목록12]현장에 임하였으나, 불특정 다수인이 사용하는 멍이라는 숙박업소임
[목록13]현장에 임하였으나, 불특정 다수인이 사용하는 멍이라는 숙박업소임
[목록14]현장에 임하였으나, 불특정 다수인이 사용하는 멍이라는 숙박업소임
[목록15]현장에 임하였으나, 불특정 다수인이 사용하는 멍이라는 숙박업소임
[목록16]현장에 임하였으나, 불특정 다수인이 사용하는 멍이라는 숙박업소임
[목록17]현장에 임하였으나, 불특정 다수인이 사용하는 멍이라는 숙박업소임
[목록18]현장에 임하였으나 점유자를 만나지 못하였으므로, 정확한 점유관계는 별도 확인이 필요함
[목록19]현장에 임하였으나 점유자를 만나지 못하였으므로, 정확한 점유관계는 별도 확인이 필요함
[목록20]현장에 임하였으나 점유자를 만나지 못하였으므로, 정확한 점유관계는 별도 확인이 필요함
[목록21]현장에 임하였으나 점유자를 만나지 못하였으므로, 정확한 점유관계는 별도 확인이 필요함
[목록22]현장에 임하였으나 점유자를 만나지 못하였으므로, 정확한 점유관계는 별도 확인이 필요함
[목록23]현장에 임하였으나 점유자를 만나지 못하였으므로, 정확한 점유관계는 별도 확인이 필요함

매각결과+

매각일자 / 결과 응찰자수 최고가 금액/응찰자명 차순위 금액
부동산
등기
임차인
그 외

부동산

매각목록

부동산 현황

1) 위치 및 주위환경 대상물건은 경기도 가평군 조종면 운악리 소재 "운악리보건진료소" 남서측 근거리에 위치 하며, 주위는 농경지, 임야, 단독주택, 펜션(숙박시설), 캠핑장 등이 혼재하는 지대로서, 제반주위환경은 보통시 됨. 2) 교통상황 대상 물건까지 차량의 접근이 가능하며, 근거리에 버스정류장이 소재하며, 운행 빈도 등 으로 보아 제반 대중교통상황은 다소 불편시 됨. 3) 형태 및 이용상태 기호(9),(11),(14),(16),(18): 공히 사다리형의 토지로서, "숙박시설" 건부지임. 기호(13): 사다리형의 토지로서, "도로"임. 기호(20): 부정형의 토지로서, 기호(21)과 건축허가득한 상태이며, 현황 "나지"(운동장, 주차장 등)임. 기호(21): 사다리형의 토지로서, 기호(20)과 건축허가득한 상태이며, 현황 "나지"(운동장 등)임. 기호(22): 부정형의 토지로서, "도로"임. 기호(23): 사다리형의 토지로서, "나지"임. 4) 인접 도로상태 기호(9),(11),(14),(16),(18): 기호(13)(세로변)인 포장도로로 진출입 가능함. 기호(13): 본건이 세로변의 포장도로임. 기호(20): 기호(13)(세로변)인 포장도로, 기호(22)(세로변)인 포장도로, 남동측 일부의 세로 변 포장도로로 각각 진출입 가능할 것으로 판단됨. 기호(21): 기호(13)(세로변)인 포장도로, 남동측 일부의 세로변 포장도로로 각각 진출입 가능할 것으로 판단됨. 기호(22): 본건이 세로변의 포장도로임. 기호(23): 기호(22)(세로변)인 포장도로와 접함. 5) 토지이용계획 및 제한상태 기호(9),(11),(14),(16): 공히 계획관리지역(2022-01-12), 성장관리계획구역(2023-12-11), 가축사육제한구역(모든축종 사육 제한)<가축분뇨의 관리 및 이용에 관한 법률>, 준보전산지<산지관리법>, 자연보전권역<수도 권정비계획법>임. 기호(13),(18): 공히 계획관리지역, 계획관리지역(2022-01-12), 성장관리계획구역(2023-12-11), 가축사육제한구역 (모든축종 사육제한)<가축분뇨의 관리 및 이용에 관한 법률>, 준보전산지<산지관리법>, 자연 보전권역<수도권정비계획법>임. 기호(20),(22),(23): 공히 계획관리지역(2022-01-12), 계획관리지역(2022-04-22), 성장관리계획구역(2023-12-11), 가축 사육제한구역(모든축종 사육제한)<가축분뇨의 관리 및 이용에 관한 법률>, 자연보전권역<수 도권정비계획법>임. 기호(21): 계획관리지역, 성장관리계획구역(2023-12-11), 가축사육제한구역(모든축종 사육제한)<가축분 뇨의 관리 및 이용에 관한 법률>, 준보전산지<산지관리법>, 자연보전권역<수도권정비계획법> 임. 6) 제시목록 외의 물건 - 7) 공부와의 차이 기호(21)은 지목 "임야"이나, 기호(20)과 일단지로 건축허가득한 상태이며, 현황 "나지" (운동장 등)임. 8) 기타참고사항(임대관례 및 기타) 1) 임대관계 : 미상임. 2) 기 타 : 의견란 참조. 1) 건물의 구조 기호(10),(12),(15)는 철근콘크리트구조 콘크리트경사지붕 2층 건물로서, (사용승인일 : 2021.10.05) 외벽 : 치장 석재 마감 등. 창호 : 샷시 창호. 기호(17)은 철근콘크리트구조 콘크리트경사지붕 2층 건물로서, (사용승인일 : 2021.10.05) 외벽 : 치장 석재 마감 및 징크판넬 마감 등. 창호 : 샷시 창호. 기호(19)는 철근콘크리트구조 경사지붕(철근콘크리트구조) 2층 건물로서, (사용승인일 : 2021.10.08) 외벽 : 치장 석재 마감 등. 창호 : 샷시 창호. 2) 이용상태 기호(10),(12),(15),(18): 공히 공부 및 현황 숙박시설임. 기호(19): 공부상 단독주택이나, 현황 숙박시설임. 3) 설비내역 급 배수 및 위생설비, 난방설비 등을 갖추고 있음. 4) 부합물 및 종물 -- 5) 공부와의 차이 기호(19): 공부상 단독주택이나, 현황 숙박시설임. 6) 기타참고사항(임대관례 및 기타) 임대관계는 미상임.

감정평가

주변 입주 예정

거리 단지명 공급년월 세대 수
※ 해당 자료는 한국부동산원 청약홈 자료에 근거하며, 인근 5km 이내의 물건을 기준으로 산정되었습니다.

등기

등기부현황

채권합계 3,430,000,000원(2건)
등기일자 권리종류 권리자/채권액 권리
2021-11-08
소유자 주식회사진흥물산 (소유자) 멤버십
단독소유 -
2021-11-08
(을1)
근저당권설정 포천농업협동조합 멤버십
말소기준 등기 1,430,000,000원
2025-02-28
(을1-2)
근저당권이전 농업협동조합자산관리회사 멤버십
- -
2022-03-02
(갑2)
가압류 박향숙 멤버십
- 2,000,000,000원
2023-04-17
(갑3)
압류 가평군 멤버십
- -
2024-07-29
(갑4)
임의경매개시결정
(2024타경1306)
포천농업협동조합 멤버십
경매기입 등기 1,348,569,233원
더보기 더보기
※ 신규 발급등기의 분석자료 반영에는 최대 1일까지 소요될수 있습니다.(등기분석,임차인분석,분석노트 등)

임차인

매각물건 명세서

구분 법원 사건번호 작성일자 매각명세서
1 남양주지원 2024타경1306[1] 2025. 6. 26.
2 남양주지원 2024타경1306[1] 2025. 4. 24.
구분 법원/
사건번호
작성일자 매각명세서
1 남양주지원
2024타경1306[1]
2025. 6. 26.
2 남양주지원
2024타경1306[1]
2025. 4. 24.

물건 비고(매각 명세서)

1. 일괄매각
2. 숙박시설(멍스빌리지풀빌라)로 조사됨[감정평가서 참조]
* 건물중 목록10,12,15,18은 공부 및 현황 숙박시설, 목록19는 공부는 단독주택이나, 현황은 숙박시설임
* 토지중 목록9,11,14,16,18 숙박시설 건부지, 목록13은 도로, 목록 20,21은 나지(운동장, 주차장 등), 목록22는 도로, 목록23
은 나지로 이용중임

임차인현황

임차인 보증금/차임 전입/확정/배당 대항력
[현황조사]
김대홍
(숙박시설임차인)
점유부분:
현등사길55-265(운악리418-48)1,2층106.7m2/운악리418-48
보증:
20,000,000
차임:
2,000,000
사업: 2021-11-04
확정: -
배당: -
멤버십

현황 조사서

조사일시

2024년08월13일13시59분

부동산의 현황

해당 각 건물은 멍1, 멍2, 멍3, 멍4, 멍5 표식이 외부에 부착되어 있음

점유 조사

[목록9]현장에 임하였으나, 불특정 다수인이 사용하는 멍이라는 숙박업소임
[목록10]현장에 임하였으나, 불특정 다수인이 사용하는 멍이라는 숙박업소임
[목록11]현장에 임하였으나, 불특정 다수인이 사용하는 멍이라는 숙박업소임
[목록12]현장에 임하였으나, 불특정 다수인이 사용하는 멍이라는 숙박업소임
[목록13]현장에 임하였으나, 불특정 다수인이 사용하는 멍이라는 숙박업소임
[목록14]현장에 임하였으나, 불특정 다수인이 사용하는 멍이라는 숙박업소임
[목록15]현장에 임하였으나, 불특정 다수인이 사용하는 멍이라는 숙박업소임
[목록16]현장에 임하였으나, 불특정 다수인이 사용하는 멍이라는 숙박업소임
[목록17]현장에 임하였으나, 불특정 다수인이 사용하는 멍이라는 숙박업소임
[목록18]현장에 임하였으나 점유자를 만나지 못하였으므로, 정확한 점유관계는 별도 확인이 필요함
[목록19]현장에 임하였으나 점유자를 만나지 못하였으므로, 정확한 점유관계는 별도 확인이 필요함
[목록20]현장에 임하였으나 점유자를 만나지 못하였으므로, 정확한 점유관계는 별도 확인이 필요함
[목록21]현장에 임하였으나 점유자를 만나지 못하였으므로, 정확한 점유관계는 별도 확인이 필요함
[목록22]현장에 임하였으나 점유자를 만나지 못하였으므로, 정확한 점유관계는 별도 확인이 필요함
[목록23]현장에 임하였으나 점유자를 만나지 못하였으므로, 정확한 점유관계는 별도 확인이 필요함

1
소재지 경기도 가평군 조종면 운악리 418-48
점유인 김대홍(임차인)
점유부분 미상(기타)
점유기간 미상
보증금/차임 미상/미상
전입/확정일자 2021.11.04/미상
2
소재지 경기도 가평군 조종면 현등사길 55-265 (주건축물제1동)
점유인 김대홍(임차인)
점유부분 미상(기타)
점유기간 미상
보증금/차임 미상/미상
전입/확정일자 2021.11.04/미상

미납관리비 조사내역

확인일자 미납금액 관리소번호 메모

※ 해당 정보는 참고용으로 제공되며 입찰 전 반드시 관리사무소를 통해 직접 확인하시기 바랍니다.

시세

전문가

그외

관할법원 관할법원 (입찰장소)

의정부지방법원 남양주지원

경매6계 : 031-869-4114

경기도 남양주시 다산동 3214 주소복사

Q&A Q&A

Q. 대법원경매가 무엇인가요?누구나 입찰에 참여할 수 있나요?

경매채무자(빌린 자)가 채무를 갚지 않았을 때 채권자(빌려준 자)의 신청으로 대법원이 채무자의 재산을 대신 매각하는 과정을 말합니다.

법원은 감정인에게 자산을 평가하게 한 후, 최저가를 정하여 그 금액 이상으로 입찰한 입찰자 중 최고가 매수인을 결정합니다.

대법원의 주관하에 국민 모두가 참여할 수 있습니다.

Q. 경매 입찰은 어떻게 하나요?누구나 입찰에 참여할 수 있나요?

1. 입찰하시고자 하는 경매물건을 정하신 후, 입찰하시고자 하는 입찰가를 최저가 이상으로 정합니다.

2. 해당 물건의 매각기일에 직접 관할법원에 방문하셔서 법원내에 비치된 입찰서를 작성하신 후 입찰하시면 됩니다.

TIP! 법원에 가실 때에는 입찰보증금(최저가의 10~30%)과 신분증을 지참하여 방문하세요.

Q. 용어가 너무 어려워서 내용을 이해하기 어려워요누구나 입찰에 참여할 수 있나요?

매각기일
매각기일은 경매 법원이 부동산에 대하여 매각 입찰을 진행하는 날을 말합니다.

유찰
매각 기일에 매수하고자 하는 사람이 없어 매각되지 않아 무효가 되는 것을 유찰이라고 합니다.

최저 매각 가격
최초 경매를 진행할때 감정인이 평가한 가격을 기준으로 책정한 금액이며 입찰자는 최저 매각 가격과 동일하거나 이상의 금액으로 입찰해야 합니다. 매각 기일에 있어 입찰자가 없어 유찰되면 통상 20~30% 저감된 금액이 다음 최저 매각 가격이 됩니다.

매수 보증금
경매 물건을 매수하고자 하는사람은 최저 매각 가격의 10분의 1(다르게 정해질 수 있음)에 해당하는 보증금액을 입찰표와 함께 집행관에게 제출하는 방법으로 제공합니다. 매각 절차가 종결된 후 집행관은 최고가 매수신고인이나 차순위매수신고인 이외의 매수신청인에게는 즉시 매수 보증금을 반환해 줍니다.

더 많은 내용을 알고 싶다면 경매마당 학습하기 코너에 준비된 용어설명을 이용해보세요.

경매정보는 법원자료와 일치하도록 하였으나 권리사항변동, 입력착오 등의 원인으로 사실과 다를 수 있습니다. 이용약관에 의거 면책조건으로 제공됨을 알리며, 경매입찰시 반드시 관련 공부를 재확인하시기 바랍니다.

PC버전으로 보기