알림

알림 내역

알림 신청내역/취소

로고 의정부지방법원 남양주지원 [경매1계] 2024타경75260[4]
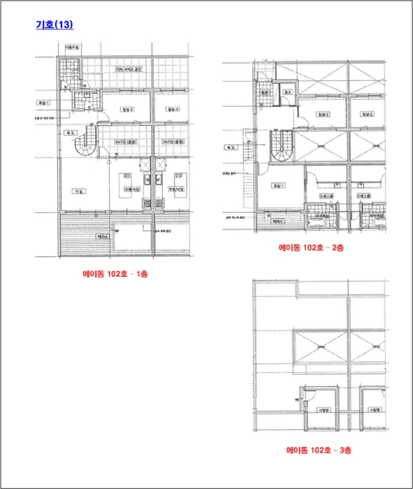
경기도 가평군 가평읍 북한강변로 173, 씨동 1층102호 (카세리오)

경기 가평군 가평읍 금대리 613-16

주소복사
경매구분 임의경매
용도 숙박시설
토지 993.8㎡(300.6평)
건물 174.63㎡(52.8평)
감정가 634,106,250원
최저가 310,712,000원
보증금 31,071,200원 (10%)
청구액 5,003,063,472원
개시결정 2024년 05월 03일
감정일 2024년 05월 20일
배당종기 2024년 07월 22일
매각일 2025년 10월 28일
2024타경75260[4]
2024타경75260[4]
2024타경75260[4]
2024타경75260[4]
2024타경75260[4]
2024타경75260[4]
2024타경75260[4]
2024타경75260[4]
2024타경75260[4]
2024타경75260[4]
2024타경75260[4]
2024타경75260[4]
2024타경75260[4]
2024타경75260[4]
2024타경75260[4]
2024타경75260[4]
2024타경75260[4]
2024타경75260[4]
2024타경75260[4]
2024타경75260[4]
2024타경75260[4]
2024타경75260[4]
2024타경75260[4]
2024타경75260[4]
2024타경75260[4]
2024타경75260[4]
2024타경75260[4]
2024타경75260[4]
2024타경75260[4]
2024타경75260[4]
2024타경75260[4]
2024타경75260[4]
2024타경75260[4]
2024타경75260[4]
2024타경75260[4]
2024타경75260[4]
2024타경75260[4]
2024타경75260[4]
2024타경75260[4]
2024타경75260[4]
2024타경75260[4]
2024타경75260[4]
2024타경75260[4]
2024타경75260[4]
2024타경75260[4]
2024타경75260[4]
2024타경75260[4]
2024타경75260[4]
2024타경75260[4]
2024타경75260[4]
2024타경75260[4]
2024타경75260[4]
2024타경75260[4]
2024타경75260[4]
2024타경75260[4]
2024타경75260[4]
2024타경75260[4]
2024타경75260[4]
2024타경75260[4]
2024타경75260[4]
2024타경75260[4]
2024타경75260[4]
2024타경75260[4]
감정가
6억3410만6250원
낙찰가 51%
3억1180만원
최고가매각허가결정 2025년 10월 28일
유찰 2회토지지분
유찰 2회토지지분
경매구분 임의경매
용도 숙박시설
토지 993.8㎡(300.6평)
건물 174.63㎡(52.8평)
감정가 634,106,250원
최저가 310,712,000원
보증금 31,071,200원 (10%)
청구액 5,003,063,472원
개시결정 2024년 05월 03일
감정일 2024년 05월 20일
배당종기 2024년 07월 22일
매각일 2025년 10월 28일
최고가매각허가결정 2025년 10월 28일

당사자 내역

소유자 이OO
소유자 정OO
소유자 김OO
소유자 이OO
소유자 주OOOOOOOOOOOOOOOOOOOO
채무자겸소유자 하OOOOOOOOOOOOO
채권자 농OOOOOOOOOOO
압류권자 가OO
공유자 아OOOOOOOOO
근저당권자 가OOOOOOOO
공유자 주OOOOOOOO
교부권자 국OOOOOOOOOOOOOOO
임차인 문OO
압류권자 남OOOOO
근저당권자 이OO
임차인 김OO
임차인 장OO
임차인 (주)OOOO, OOOO OOO
임차인 펀OOOOOO
공유자 아OOOOOOO

기일 내역

2025.11.04(14:00)
최고가매각허가결정
2025.10.28(10:30)
3억1180만원 매각
3억1071만2000원 최저가
2025.09.16(10:30)
4억4387만4000원 유찰
2025.08.12(10:30)
6억3410만6250원 유찰

물건 비고(공고문)

1. 일괄매각 2. 목록17(도로지분): 단지의 출입도로로 이용중

물건 비고(매각 명세서)

일괄매각

현황 조사(현황 조사서)

목록 1. -철근콘크리트조 평지붕 3층 공동주택 및 숙박시설로 현황은 비동 3호로 기재되어 있음 목록 2. -철근콘크리트조 평지붕 3층 공동주택 및 숙박시설로 현황은 비동 4호로 기재되어 있음 목록 3. -철근콘크리트조 평지붕 3층 공동주택 및 숙박시설로 현황은 씨동 1호로 기재되어 있음 목록 4. -철근콘크리트조 평지붕 3층 공동주택 및 숙박시설로 현황은 씨동 2호로 기재되어 있음 목록 5. -철근콘크리트조 평지붕 3층 공동주택 및 숙박시설로 현황은 씨동 3호로 기재되어 있음 목록 6. -철근콘크리트조 평지붕 3층 공동주택 및 숙박시설로 현황은 씨동 4호로 기재되어 있음 목록 7. -철근콘크리트조 평지붕 3층 공동주택 및 숙박시설로 현황은 디동 1호로 기재되어 있음 목록 8. -철근콘크리트조 평지붕 3층 공동주택 및 숙박시설로 현황은 디동 2호로 기재되어 있음 목록 9. -철근콘크리트조 평지붕 3층 공동주택 및 숙박시설로 현황은 디동 4호로 기재되어 있음 목록 10 -철근콘크리트조 평지붕 3층 공동주택 및 숙박시설이며 현재 해당 동에는 아무런 표기도 찾을 수 없음 목록 11. -현장에서 확인한 바 에프동은 확인이 되지 않고 맨 아래 경비실과 맨 위쪽 물탱크가 있으나 아래쪽 경비실이 그나마 건물의 현황에 부합해 보이며, 현장에 있는 (주)카세리아 직원에게 문의한 바 자신들도 잘 모르겠으며, 현재는 사무실을 잘 사용하지 않는다고 진술함 목록 12. -지목과 현황 모두 도로로, 아스팔트 포장된 도로임, 육안으로 확인한 것이라 정확한 위치와 면적, 인접토지와의 경계 등은 측량 등 별도 확인이 필요함 목록 13. -철근콘크리트조 평지붕 3층 공동주택 및 숙박시설로 현황은 에이동 2호로 기재되어 있음 목록 14. -철근콘크리트조 평지붕 3층 공동주택 및 숙박시설로 현황은 비동 2호로 기재되어 있음 각 전입세대확인서, 상가건물임대차현황서 기재 및 임차인 김경순, 장문희의 진술에 의함

점유 조사(현황 조사서)

[목록4]현장에 임하였으나 폐문부재하여 점유자를 만나지 못하였으므로, 정확한 점유관계는 별도 확인이 필요함

-전입세대확인결과 전입된 세대가 없었고, 해당 동에 등록된 외국인도 없음
-현관 문틈에 안내문을 끼워놓음

매각결과+

매각일자 / 결과 응찰자수 최고가 금액/응찰자명 차순위 금액

동일사건 물건목록

번호 주소 상태/입찰일 물건내역
1 경기도 가평군 가평읍 북한강변로 173, 비동 1층103호 (카세리오) 변경
2025.12.02
바로가기
2 경기도 가평군 가평읍 북한강변로 173, 비동 1층104호 (카세리오) 변경
2025.12.02
바로가기
3 경기도 가평군 가평읍 북한강변로 173, 씨동 1층101호 (카세리오) 변경
2025.12.02
바로가기
4
본건
경기도 가평군 가평읍 북한강변로 173, 씨동 1층102호 (카세리오) 최고가매각허가결정
2025.10.28
-
5 경기도 가평군 가평읍 북한강변로 173, 씨동 1층103호 (카세리오) 변경
2025.12.02
바로가기
6 경기도 가평군 가평읍 북한강변로 173, 씨동 1층104호 (카세리오) 변경
2025.12.02
바로가기
7 경기도 가평군 가평읍 북한강변로 173, 디동 1층101호 (카세리오) 변경
2025.12.02
바로가기
8 경기도 가평군 가평읍 북한강변로 173, 디동 1층102호 (카세리오) 변경
2025.12.02
바로가기
9 경기도 가평군 가평읍 북한강변로 173, 디동 1층104호 (카세리오) 변경
2025.12.02
바로가기
10 경기도 가평군 가평읍 북한강변로 173, 이동 1층101호 (카세리오) 변경
2025.12.02
바로가기
11 경기도 가평군 가평읍 북한강변로 173, 에프동 1층101호 (카세리오) 매각
2025.10.28
바로가기
12 경기도 가평군 가평읍 북한강변로 173, 에이동 1층102호 (카세리오) 변경
2025.12.02
바로가기
13 경기도 가평군 가평읍 북한강변로 173, 비동 1층102호 (카세리오) 변경
2025.12.02
바로가기
부동산
등기
임차인
그 외

부동산

매각목록

부동산 현황

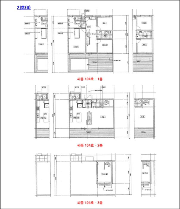
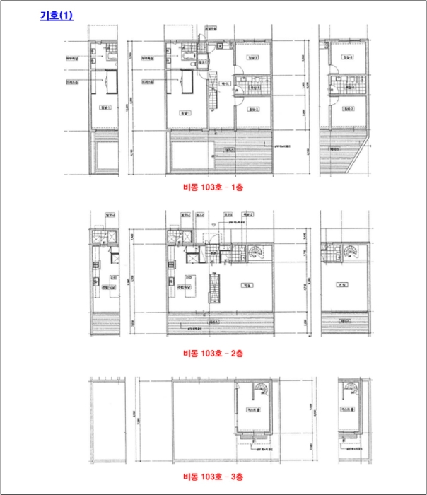
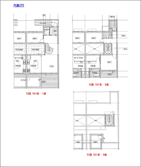
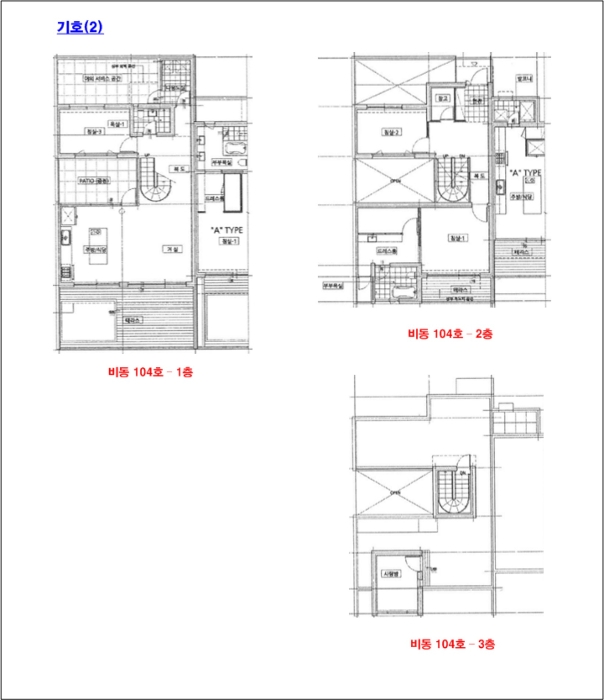
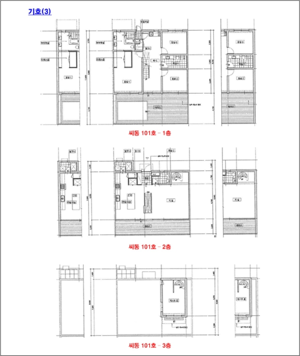
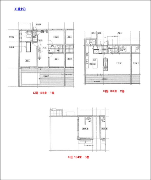
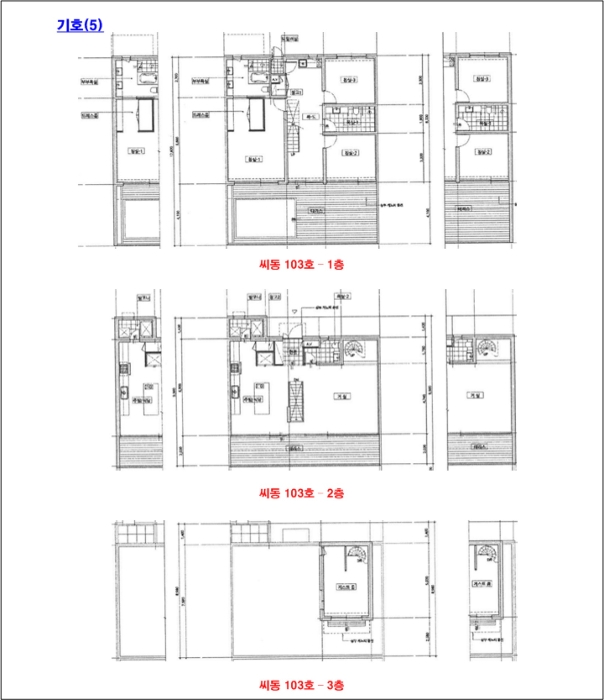
1) 위치 및 주위환경 본건은 경기도 가평군 가평읍 금대리 소재 "경기도교직원가평수덕원" 남서측 인근에 위치하며, 주위는 간선도로변으로 상업용이 소재하고, 후면으로 펜션, 전원주택, 주거나지, 농지 등이 혼재하는 지역으로 제반 주위환경 보통시 됨. 2) 교통상황 본건까지 차량접근이 가능하며, 인근 간선도로변으로 버스정류장이 소재하는 등 제반 교통상황은 보통시 됨. 3) 형태 및 이용상태 부정형의 토지로서, 본건 구분건물(카세리오) 진입도로로 이용중임. 4) 인접 도로상태 본건 남측으로 지방도(391번)에 접함. 5) 토지이용계획 및 제한상태 계획관리지역, 소하천(저촉), 가축사육제한구역(모든축종 사육제한), 준보전산지, 소하천구역(하금대천), 자연보전권역, (한강)폐기물매립시설 설치제한지역, (한강)수변구역임. 6) 제시목록 외의 물건 없음. 7) 공부와의 차이 없음. 8) 기타참고사항(임대관례 및 기타) 공유소유지분 중 하베르인베스트먼트 외 3인 소유지분만의 평가임. 1) 위치 및 주위환경 본건은 경기도 가평군 가평읍 금대리 소재 "경기도교직원가평수덕원" 남서측 인근에 위치하는 공동주택, 생활숙박시설 및 근린생활시설로서, "카세리오" 풀빌라단지내 일부 구분건물로서, 인근은 한강변 수상레져, 펜션, 풀빌라, 간선도로변 근린생활시설, 후면 전원주택이 혼재하는 지역으로 숙박시설 등으로서 제반 주위환경은 보통시 됨. 2) 교통상황 본건까지 차량접근이 용이하고 인근에 노선버스정류장이 소재하는 등 전반적인 교통상황은 보통시 됨. 3) 건물의 구조 본건 공히 철근콘크리트구조 평지붕(철근콘크리트구조) 지상3층(기호 1-9, 13,14) 및 지상1층(기호 10,11) 건물로서 외벽 : 시멘몰탈위 패인팅마감 및 일부 징크마감 등 내벽 : 벽지마감 및 일부 타일마감 등(탐문조사 등) 창호 : 하이샷시 창호마감 등 4) 이용상태 기호 1 - 9, 13,14 : 생활숙박시설(카세리오 풀빌라) 로 이용중임. 기호 10 : 근린생활시설로서 물건이 적치되어 있는 상태임. 기호 11 : 근린생활시설로서 카세리오 정문 관리실 등으로 이용중임. 별첨 "내부구조도" 참조 5) 설비내역 위생 및 급배수설비, 화재탐지설비, LPG가스에 의한 난방설비 등을 갖추었음. 6) 토지의 형상 및 이용상태 남측 하향의 완경사지를 계단식으로 평탄화한 2필 일단의 부정형 토지로서, "카세리오: 생활숙박시설(풀빌라) 등" 부지로 이용중임. 7) 인접 도로상태등 단지 내부도로를 통하여 남측으로 외곽 왕복 2차선도로에 접함. 8) 토지이용계획 및 제한상태 기호 1,2 공히 계획관리지역, 가축사육제한구역(모든축종 사육제한), 준보전산지, 자연보전권역, (한강)폐기물매립시설설치제한지역, (한강)수변구역이며, 기호 1은 소하천구역(하금대천)임. 9) 공부와의 차이 기호 1,2 13,14는 등기사항전부증명서상 용도가 공동주택, 공동주택 및 생활숙박시설로 등재되어 있으나, 현황 "카세리오" 풀빌라 단지내 생활숙박시설로 이용중이며, 기호 11은 근린생활시설로 등재되어 있으나, 현황 카세리오 정문 관리실 등으로 이용중임. 10) 기타참고사항(임대관례 및 기타) 카세리오 풀빌라 단지내에 있음. 임대관계는 미상임.

감정평가

주변 입주 예정

거리 단지명 공급년월 세대 수
※ 해당 자료는 한국부동산원 청약홈 자료에 근거하며, 인근 5km 이내의 물건을 기준으로 산정되었습니다.

등기

등기부현황

채권합계 5,856,000,000원(2건)
등기일자 권리종류 권리자/채권액 권리
2020-11-05
소유자 하베르인베스트먼트주식회사(소유자) 멤버십
단독소유 -
2020-11-05
(을1)
근저당권설정 가평군농업협동조합 멤버십
말소기준 등기 5,556,000,000원
2024-02-07
(을1-1)
근저당권이전 농업협동조합자산관리회사 멤버십
- -
2021-05-28
(을4)
근저당권설정 이영심 멤버십
- 300,000,000원
2023-01-26
(갑8)
압류 남양주세무서장 멤버십
- -
2023-06-12
(갑9)
압류 가평군 멤버십
- -
2024-05-03
(갑10)
임의경매개시결정
(2024타경75260)
농업협동조합자산관리회사 멤버십
경매기입 등기 5,003,063,472원
더보기 더보기
※ 신규 발급등기의 분석자료 반영에는 최대 1일까지 소요될수 있습니다.(등기분석,임차인분석,분석노트 등)

임차인

매각물건 명세서

구분 법원 사건번호 작성일자 매각명세서
1 남양주지원 2024타경75260[4] 2025. 9. 18.
2 남양주지원 2024타경75260[4] 2025. 8. 14.
3 남양주지원 2024타경75260[4] 2025. 7. 29.
구분 법원/
사건번호
작성일자 매각명세서
1 남양주지원
2024타경75260[4]
2025. 9. 18.
2 남양주지원
2024타경75260[4]
2025. 8. 14.
3 남양주지원
2024타경75260[4]
2025. 7. 29.

물건 비고(매각 명세서)

일괄매각

임차인현황

임차인 보증금/차임 전입/확정/배당 대항력
매각물건명세서상 임차인이 존재하지 않습니다.

현황 조사서

조사일시

2024년05월16일16시34분 / 2024년05월17일17시17분

부동산의 현황

목록 1. -철근콘크리트조 평지붕 3층 공동주택 및 숙박시설로 현황은 비동 3호로 기재되어 있음 목록 2. -철근콘크리트조 평지붕 3층 공동주택 및 숙박시설로 현황은 비동 4호로 기재되어 있음 목록 3. -철근콘크리트조 평지붕 3층 공동주택 및 숙박시설로 현황은 씨동 1호로 기재되어 있음 목록 4. -철근콘크리트조 평지붕 3층 공동주택 및 숙박시설로 현황은 씨동 2호로 기재되어 있음 목록 5. -철근콘크리트조 평지붕 3층 공동주택 및 숙박시설로 현황은 씨동 3호로 기재되어 있음 목록 6. -철근콘크리트조 평지붕 3층 공동주택 및 숙박시설로 현황은 씨동 4호로 기재되어 있음 목록 7. -철근콘크리트조 평지붕 3층 공동주택 및 숙박시설로 현황은 디동 1호로 기재되어 있음 목록 8. -철근콘크리트조 평지붕 3층 공동주택 및 숙박시설로 현황은 디동 2호로 기재되어 있음 목록 9. -철근콘크리트조 평지붕 3층 공동주택 및 숙박시설로 현황은 디동 4호로 기재되어 있음 목록 10 -철근콘크리트조 평지붕 3층 공동주택 및 숙박시설이며 현재 해당 동에는 아무런 표기도 찾을 수 없음 목록 11. -현장에서 확인한 바 에프동은 확인이 되지 않고 맨 아래 경비실과 맨 위쪽 물탱크가 있으나 아래쪽 경비실이 그나마 건물의 현황에 부합해 보이며, 현장에 있는 (주)카세리아 직원에게 문의한 바 자신들도 잘 모르겠으며, 현재는 사무실을 잘 사용하지 않는다고 진술함 목록 12. -지목과 현황 모두 도로로, 아스팔트 포장된 도로임, 육안으로 확인한 것이라 정확한 위치와 면적, 인접토지와의 경계 등은 측량 등 별도 확인이 필요함 목록 13. -철근콘크리트조 평지붕 3층 공동주택 및 숙박시설로 현황은 에이동 2호로 기재되어 있음 목록 14. -철근콘크리트조 평지붕 3층 공동주택 및 숙박시설로 현황은 비동 2호로 기재되어 있음 각 전입세대확인서, 상가건물임대차현황서 기재 및 임차인 김경순, 장문희의 진술에 의함

점유 조사

[목록4]현장에 임하였으나 폐문부재하여 점유자를 만나지 못하였으므로, 정확한 점유관계는 별도 확인이 필요함

-전입세대확인결과 전입된 세대가 없었고, 해당 동에 등록된 외국인도 없음
-현관 문틈에 안내문을 끼워놓음

조사일시

2024년05월16일16시34분 / 2024년05월17일17시17분

부동산의 현황

목록 1.
-철근콘크리트조 평지붕 3층 공동주택 및 숙박시설로 현황은 비동 3호로 기재되어 있음
목록 2.
-철근콘크리트조 평지붕 3층 공동주택 및 숙박시설로 현황은 비동 4호로 기재되어 있음
목록 3.
-철근콘크리트조 평지붕 3층 공동주택 및 숙박시설로 현황은 씨동 1호로 기재되어 있음
목록 4.
-철근콘크리트조 평지붕 3층 공동주택 및 숙박시설로 현황은 씨동 2호로 기재되어 있음
목록 5.
-철근콘크리트조 평지붕 3층 공동주택 및 숙박시설로 현황은 씨동 3호로 기재되어 있음
목록 6.
-철근콘크리트조 평지붕 3층 공동주택 및 숙박시설로 현황은 씨동 4호로 기재되어 있음
목록 7.
-철근콘크리트조 평지붕 3층 공동주택 및 숙박시설로 현황은 디동 1호로 기재되어 있음
목록 8.
-철근콘크리트조 평지붕 3층 공동주택 및 숙박시설로 현황은 디동 2호로 기재되어 있음
목록 9.
-철근콘크리트조 평지붕 3층 공동주택 및 숙박시설로 현황은 디동 4호로 기재되어 있음
목록 10
-철근콘크리트조 평지붕 3층 공동주택 및 숙박시설이며 현재 해당 동에는 아무런 표기도 찾을 수 없음
목록 11.
-현장에서 확인한 바 에프동은 확인이 되지 않고 맨 아래 경비실과 맨 위쪽 물탱크가 있으나 아래쪽 경비실이 그나마 건물의 현황에 부합해 보이며, 현장에 있는 (주)카세리아 직원에게 문의한 바 자신들도 잘 모르겠으며, 현재는 사무실을 잘 사용하지 않는다고 진술함
목록 12.
-지목과 현황 모두 도로로, 아스팔트 포장된 도로임, 육안으로 확인한 것이라 정확한 위치와 면적, 인접토지와의 경계 등은 측량 등 별도 확인이 필요함
목록 13.
-철근콘크리트조 평지붕 3층 공동주택 및 숙박시설로 현황은 에이동 2호로 기재되어 있음
목록 14.
-철근콘크리트조 평지붕 3층 공동주택 및 숙박시설로 현황은 비동 2호로 기재되어 있음
각 전입세대확인서, 상가건물임대차현황서 기재 및 임차인 김경순, 장문희의 진술에 의함

점유 조사

[목록4]현장에 임하였으나 폐문부재하여 점유자를 만나지 못하였으므로, 정확한 점유관계는 별도 확인이 필요함

-전입세대확인결과 전입된 세대가 없었고, 해당 동에 등록된 외국인도 없음
-현관 문틈에 안내문을 끼워놓음

미납관리비 조사내역

확인일자 미납금액 관리소번호 메모

※ 해당 정보는 참고용으로 제공되며 입찰 전 반드시 관리사무소를 통해 직접 확인하시기 바랍니다.

시세

전문가

그외

관할법원 관할법원 (입찰장소)

의정부지방법원 남양주지원

경매1계 : 031-869-4114

경기도 남양주시 다산동 3214 주소복사

Q&A Q&A

Q. 대법원경매가 무엇인가요?누구나 입찰에 참여할 수 있나요?

경매채무자(빌린 자)가 채무를 갚지 않았을 때 채권자(빌려준 자)의 신청으로 대법원이 채무자의 재산을 대신 매각하는 과정을 말합니다.

법원은 감정인에게 자산을 평가하게 한 후, 최저가를 정하여 그 금액 이상으로 입찰한 입찰자 중 최고가 매수인을 결정합니다.

대법원의 주관하에 국민 모두가 참여할 수 있습니다.

Q. 경매 입찰은 어떻게 하나요?누구나 입찰에 참여할 수 있나요?

1. 입찰하시고자 하는 경매물건을 정하신 후, 입찰하시고자 하는 입찰가를 최저가 이상으로 정합니다.

2. 해당 물건의 매각기일에 직접 관할법원에 방문하셔서 법원내에 비치된 입찰서를 작성하신 후 입찰하시면 됩니다.

TIP! 법원에 가실 때에는 입찰보증금(최저가의 10~30%)과 신분증을 지참하여 방문하세요.

Q. 용어가 너무 어려워서 내용을 이해하기 어려워요누구나 입찰에 참여할 수 있나요?

매각기일
매각기일은 경매 법원이 부동산에 대하여 매각 입찰을 진행하는 날을 말합니다.

유찰
매각 기일에 매수하고자 하는 사람이 없어 매각되지 않아 무효가 되는 것을 유찰이라고 합니다.

최저 매각 가격
최초 경매를 진행할때 감정인이 평가한 가격을 기준으로 책정한 금액이며 입찰자는 최저 매각 가격과 동일하거나 이상의 금액으로 입찰해야 합니다. 매각 기일에 있어 입찰자가 없어 유찰되면 통상 20~30% 저감된 금액이 다음 최저 매각 가격이 됩니다.

매수 보증금
경매 물건을 매수하고자 하는사람은 최저 매각 가격의 10분의 1(다르게 정해질 수 있음)에 해당하는 보증금액을 입찰표와 함께 집행관에게 제출하는 방법으로 제공합니다. 매각 절차가 종결된 후 집행관은 최고가 매수신고인이나 차순위매수신고인 이외의 매수신청인에게는 즉시 매수 보증금을 반환해 줍니다.

더 많은 내용을 알고 싶다면 경매마당 학습하기 코너에 준비된 용어설명을 이용해보세요.

경매정보는 법원자료와 일치하도록 하였으나 권리사항변동, 입력착오 등의 원인으로 사실과 다를 수 있습니다. 이용약관에 의거 면책조건으로 제공됨을 알리며, 경매입찰시 반드시 관련 공부를 재확인하시기 바랍니다.

PC버전으로 보기