알림

알림 내역

알림 신청내역/취소

온비드
물건정보
입찰이력
공고문
지도
사진보기
문서
공고문&첨부파일
재산명세서
감정평가서
등기부등본
분석
조회수분석 M
사이트
온비드
국토부 실거래가
토지이음
아실
네이버 단지정보
네이버 매물정보
호갱노노
부동산플래닛
로고 [임대(대부)] 공유재산 2024-0200-009416
경기도 성남시 분당구 삼평동 698 교육연구시설 2동 4층 C구역

경기 성남시 분당구 삼평동 698

주소복사
20240200009416
20240200009416
감정가
- 원
최저가
3253만3020원
낙찰결정대기 개찰일 2025년 09월 11일 (16:00)
용도 교육연구시설
대상 건물전체
토지 0㎡ (0평)
건물 284.94㎡ (86.19평)
보증금
처분방식 임대(대부)
자산구분 공유재산
입찰방식 제한경쟁(최고가방식) / 총액
입찰방법 인터넷
입찰시작 2025년 09월 04일 (09:00)
입찰마감 2025년 09월 10일 (18:00)
임대기간 공고문 참조
공고일자 2025년 09월 04일
집행 (재)경기도경제과학진흥원
담당자 재무회계팀/천현순 과장
연락처 031-776-4815
유찰1회, 임대(대부)
회차 001/차수 001 자세히 > 개찰 2029.09.01(16:00)

2025.08.05

(10:30)

~

2025.08.29

(16:00)

3253만3020원 취소
회차 001/차수 001 자세히 > 개찰 2025.09.11(16:00)

2025.09.04

(09:00)

~

2025.09.10

(18:00)

3253만3020원 낙찰결정대기
회차 001/차수 001 자세히 > 개찰 2025.08.01(16:00)

2025.07.16

(16:00)

~

2025.07.31

(16:00)

3253만3020원 유찰

가장 빠른 경매 정보 플랫폼 경매마당
남들보다 먼저 정보를 선점하세요

간단한 로그인 후 바로 이용 가능합니다

bolt 대법원 보다 빠른 물건 정보
verified 가장 많은 경매 물건 제공
trending_up 월 5회 등기부 무료 열람

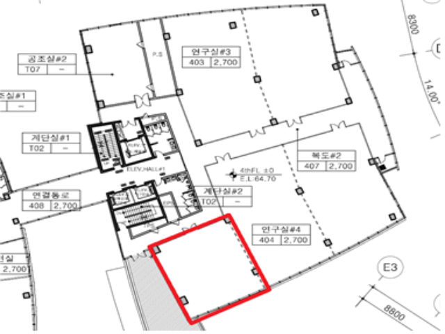
현황정보

면적 정보

  • 토지 0㎡(0평)
  • 건물 285㎡(86.19평)
번호 종별(지목) 면적 지분 비고
조회된 데이터가 없습니다.

이용현황

[위치 및 부근현황]

경기도 성남시 분당구 판교로 289번길 20(삼평동), 스타트업캠퍼스 2동 4층


[이용현황]

경기도 성남시 분당구 판교로 289번길 20(삼평동), 스타트업캠퍼스 2동 4층


[기타사항]

공고문 참조

명도책임

임대계약건임

부대조건

공고문 참조

주변 입주 예정

거리 단지명 공급년월 세대 수
※ 해당 자료는 한국부동산원 청약홈 자료에 근거하며, 인근 5km 이내의 물건을 기준으로 산정되었습니다.

시세분석

낙찰가 및 실거래가

낙찰 가격분포

주변 낙찰사례의 가격대와 거래 시점을 그래프로 확인할 수 있어요

전체 0

기타

입찰방법&제한

집행기관

(재)경기도경제과학진흥원

담당자

재무회계팀/천현순 과장
031-776-4815

전자보증서

사용 불가능

2인 미만 유찰

1인이 입찰해도 유효함

차순위매수신청

신청 불가능

대리입찰

대리입찰 불가능

공동입찰

공동입찰 불가능

2회 이상 입찰

동일물건 2회 이상 입찰 불가능

납부기한

공고문참조

전문가

Q&A

Q. 공매와 경매는 무슨 차이점이 있나요?더보기

· 경매는 개인 간의 채무관계를 정리하기 위해 대법원을 통해 재산을 매각하는 것이고, 공매는 압류된 재산 또는 공기업, 금융기관 등의 재산을 한국자산관리공사를 통해 처분하는 것입니다.
· 경매는 법원에 직접 참석하여 현장에서 입찰하지만 공매는 특정 기간 동안 인터넷(온비드)을 통해 입찰합니다. (현장입찰, 수의계약 제외)
· 경매는 유찰 시 최저가격이 20~30%씩 하락하고 공매는 1차 공매예정가격의 최대 50%까지 10%씩 하락합니다.
· 명도 시 경매는 인도명령제도를 활용할 수 있으나 공매는 법원에 소를 제기하여야 합니다.

Q. 공매재산별 차이점은 무엇인가요?더보기

압류재산 세금의 체납 등으로 압류된 자산을 매각하는 것으로 명도책임이 매수자에게 있어 경매와 마찬가지로 권리분석이 필요합니다.
국유재산 국가의 재산에 대한 처분을 자산공사가 위임받은 것으로 매각 또는 일정 기간 임대(대부)하게 됩니다.
수탁재산 한국자산관리공사가 위임받아 매각을 진행하는 것으로 금융기관 및 기업체의 재산을 말합니다.
유입자산 자산공사가 직접 취득하여 일반인에게 다시 매각하는 자산을 말합니다.

Q. 공매 입찰은 어떻게 진행되나요?더보기

· 온비드 홈페이지를 통해 인터넷 입찰이 가능합니다 (현장입찰 또는 수의계약 제외) 기간입찰제로 특정 기간 동안 누구나 자유롭게 입찰이 가능합니다.
· 온비드 회원가입 -> 공동인증서등록 -> 인터넷 입찰서 작성 -> 입찰서 제출 -> 보증금 납부 순으로 진행됩니다.
· 수의계약 가능 물건은 입찰과 별도로 개별 계약이 가능한 것으로 담당기관에 문의하여 확인하실 수 있습니다.

입찰 참가 방법 자세히보기

공매정보는 한국자산관리공사와 일치하도록 하였으나 권리사항변동, 입력착오 등의 원인으로 사실과 다를 수 있습니다. 이용약관에 의거 면책조건으로 제공됨을 알리며, 입찰시 반드시 관련 공부를 재확인하시기 바랍니다.

PC버전으로 보기