알림

알림 내역

알림 신청내역/취소

로고 [임대(대부)] 공유재산 2025-0400-023381
서울특별시 동작구 대방동 340-3 지상1~2층 휴게음식점 근린생활시설

서울 동작구 대방동 340-3

주소복사
20250400023381
20250400023381
20250400023381
감정가
- 원
낙찰가
3360만원
낙찰 개찰일 2025년 08월 11일 (10:00)
용도 근린생활시설
대상 건물전체
토지 0㎡ (0평)
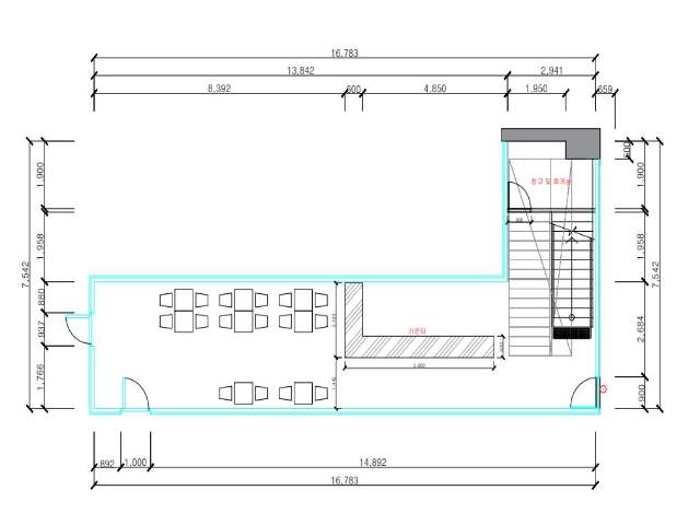
건물 202.88㎡ (61.37평)
보증금
처분방식 임대(대부)
자산구분 공유재산
입찰방식 일반경쟁(최고가방식) / 총액
입찰방법 인터넷
입찰시작 2025년 08월 01일 (10:00)
입찰마감 2025년 08월 08일 (16:00)
임대기간 공고문 참조
공고일자 2025년 08월 01일
집행 서울특별시여성가족재단
담당자 경영지원팀/용철중
연락처 02-810-5458
유찰7회, 임대(대부)
회차 001/차수 001 자세히 > 개찰 2025.08.11(10:00)

2025.08.01

(10:00)

~

2025.08.08

(16:00)

3360만원 낙찰
2894만2000원 최저가
회차 001/차수 001 자세히 > 개찰 2025.07.25(10:00)

2025.07.17

(10:00)

~

2025.07.24

(16:00)

3617만8000원 유찰
회차 001/차수 001 자세히 > 개찰 2025.07.11(10:00)

2025.07.03

(11:30)

~

2025.07.10

(16:00)

4341만3600원 유찰
부동산
그 외

부동산

면적 정보

  • 토지 0㎡(0평)
  • 건물 203㎡(61.37평)
번호 종별(지목) 면적 지분 비고
1 건물 > 휴게음식점 (제1종근린생활시설) 202.88㎡ (61.4평) 휴게음식점 (제1종근린생활시설)

이용현황

[위치 및 부근현황]

서울가족플라자 지상 2층 휴게음식점 / 대방역 2번, 3번 출구 인접 (연결)


[이용현황]

휴게음식점 (제1종근린생활시설)


[기타사항]

* 입찰 참여 시 공고문, 일반조건 및 특수조건 등 첨부된 문서와 문서의 내용(유의사항 포함)을 정확하게 숙지하신 후 입찰에 참가하여 주시기 바랍니다. (숙지하지 아니한 채로 입찰에 참가한 불이익은 입찰참가자에게 있습니다.)

명도책임

기타

부대조건

* 입찰 참여 시 공고문, 일반조건 및 특수조건 등 첨부된 문서와 문서의 내용(유의사항 포함)을 정확하게 숙지하신 후 입찰에 참가하여 주시기 바랍니다. (숙지하지 아니한 채로 입찰에 참가한 불이익은 입찰참가자에게 있습니다.)

* 참가자격: 공고문 등 첨부 파일 참고 * 유의사항: 공고문 및 첨부파일의 내용 숙지 후 입찰 참가

주변 입주 예정

거리 단지명 공급년월 세대 수
※ 해당 자료는 한국부동산원 청약홈 자료에 근거하며, 인근 5km 이내의 물건을 기준으로 산정되었습니다.

시세

전문가

그외

관할법원 입찰방법&제한

집행기관

서울특별시여성가족재단

담당자

경영지원팀/용철중
02-810-5458

전자보증서

사용 불가능

2인 미만 유찰

1인이 입찰해도 유효함

차순위매수신청

신청 불가능

대리입찰

대리입찰 불가능

공동입찰

공동입찰 불가능

2회 이상 입찰

동일물건 2회 이상 입찰 불가능

납부기한 납부기한

공고문 참고

Q&A Q&A

Q. 공매와 경매는 무슨 차이점이 있나요?더보기

· 경매는 개인 간의 채무관계를 정리하기 위해 대법원을 통해 재산을 매각하는 것이고, 공매는 압류된 재산 또는 공기업, 금융기관 등의 재산을 한국자산관리공사를 통해 처분하는 것입니다.
· 경매는 법원에 직접 참석하여 현장에서 입찰하지만 공매는 특정 기간 동안 인터넷(온비드)을 통해 입찰합니다. (현장입찰, 수의계약 제외)
· 경매는 유찰 시 최저가격이 20~30%씩 하락하고 공매는 1차 공매예정가격의 최대 50%까지 10%씩 하락합니다.
· 명도 시 경매는 인도명령제도를 활용할 수 있으나 공매는 법원에 소를 제기하여야 합니다.

Q. 공매재산별 차이점은 무엇인가요?더보기

압류재산 세금의 체납 등으로 압류된 자산을 매각하는 것으로 명도책임이 매수자에게 있어 경매와 마찬가지로 권리분석이 필요합니다.
국유재산 국가의 재산에 대한 처분을 자산공사가 위임받은 것으로 매각 또는 일정 기간 임대(대부)하게 됩니다.
수탁재산 한국자산관리공사가 위임받아 매각을 진행하는 것으로 금융기관 및 기업체의 재산을 말합니다.
유입자산 자산공사가 직접 취득하여 일반인에게 다시 매각하는 자산을 말합니다.

Q. 공매 입찰은 어떻게 진행되나요?더보기

· 온비드 홈페이지를 통해 인터넷 입찰이 가능합니다 (현장입찰 또는 수의계약 제외) 기간입찰제로 특정 기간 동안 누구나 자유롭게 입찰이 가능합니다.
· 온비드 회원가입 -> 공동인증서등록 -> 인터넷 입찰서 작성 -> 입찰서 제출 -> 보증금 납부 순으로 진행됩니다.
· 수의계약 가능 물건은 입찰과 별도로 개별 계약이 가능한 것으로 담당기관에 문의하여 확인하실 수 있습니다.

입찰 참가 방법 자세히보기

공매정보는 한국자산관리공사와 일치하도록 하였으나 권리사항변동, 입력착오 등의 원인으로 사실과 다를 수 있습니다. 이용약관에 의거 면책조건으로 제공됨을 알리며, 입찰시 반드시 관련 공부를 재확인하시기 바랍니다.

PC버전으로 보기