알림

알림 내역

알림 신청내역/취소

로고 서울중앙지방법원 본원 [경매3계] 2021타경109005[1]
서울특별시 서초구 사임당로 175, 1층103호 (서초동,갤럭시타워)

서울 서초구 서초동 1330-10

주소복사
경매구분 임의경매
용도 상가
토지 7.9㎡(2.4평)
건물 48.66㎡(14.7평)
감정가 1,250,000,000원
최저가 512,000,000원
보증금 51,200,000원 (10%)
청구액 2,963,193,334원
개시결정 2021년 10월 05일
감정일 2021년 10월 13일
배당종기 2021년 12월 15일
매각일 2024년 01월 09일
2021타경109005[1]
2021타경109005[1]
2021타경109005[1]
2021타경109005[1]
2021타경109005[1]
2021타경109005[1]
2021타경109005[1]
2021타경109005[1]
2021타경109005[1]
2021타경109005[1]
2021타경109005[1]
2021타경109005[1]
2021타경109005[1]
2021타경109005[1]
2021타경109005[1]
2021타경109005[1]
2021타경109005[1]
2021타경109005[1]
2021타경109005[1]
감정가
12억5000만원
낙찰가 40%
7억5000만원
배당종결 2024년 01월 09일
유찰 4회선순위임차인유치권
유찰 4회선순위임차인유치권
경매구분 임의경매
용도 상가
토지 7.9㎡(2.4평)
건물 48.66㎡(14.7평)
감정가 1,250,000,000원
최저가 512,000,000원
보증금 51,200,000원 (10%)
청구액 2,963,193,334원
개시결정 2021년 10월 05일
감정일 2021년 10월 13일
배당종기 2021년 12월 15일
매각일 2024년 01월 09일
배당종결 2024년 01월 09일

당사자 내역

채무자겸소유자 김OO
채권자 유OOOOOOOOOOOOOOOOOOOOOOOO
임차인 (주)OOO,OOO
교부권자 국OOOOOOOOOOOOOO
교부권자 서OOOOOOOO
교부권자 기OOOO
임차인 (주)OOOOOO,OOO
임차인 주OO
임차인 (주)OOOOO, OOO
유치권자 주OO
근저당권부질권자 류OO
교부권자 서OOOO
압류권자 서OOOOOOO
압류권자 국OOOOOOOOOOOOOO
근저당권자 유OOOOOOOOOOOOOOOOOOOOOOOO
근저당권자 주OOOOOOOOOOO
임차인 시OOOOOOOOOO
유치권자 주OOOOOOOOO

기일 내역

2024.04.03
대금지급기한
2024.03.20
기일변경
2024.01.16
최고가매각허가결정
2024.01.09
7억5000만원 매각
5억1200만원 최저가
2023.11.21
6억4000만원 유찰
2023.10.31
기일변경
2023.07.04
기일변경
2023.03.21
기일변경
2023.02.14
8억원 유찰
2023.01.10
10억원 유찰
2022.10.18
기일변경
2022.09.13
12억5000만원 유찰

기일 변경(2023년03월15일)

변경 후 추후지정

물건 비고(매각 명세서)

-2023.01.09. 임차인 주식회사 파이브트리, 주현하로부터 점포권리비 및 리모델링비 1억5천만원에 대하여 유치권신고서가 제출
되었으나, 그 성립 여부는 불분명함.
-2023.02.02. 신청채권자로부터 유치권배제신청서가 제출되었으나, 그 성립 여부는 불분명함.

현황 조사(현황 조사서)

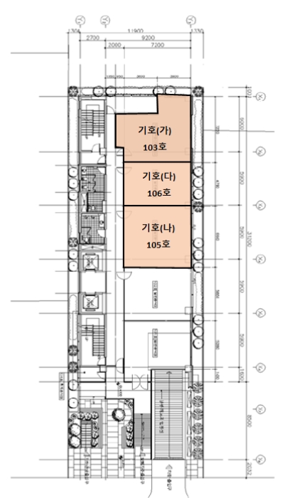
- 본 건 부동산은 출입문 입구 안쪽 바닥에 호실 표시가 되어 있고, 105호와 106호 사이 내부 경계벽이 없고 터져 있음.
- 위 임대차 관계는 상가건물임대차 현황서에 의함.

점유 조사(현황 조사서)

[목록1]1) 본 건 부동산의 상가건물임대차 현황서에 3명이 임차인으로 등재되어 있으며, 2) 본 건 부동산에 임하여 만난 성명불상 점유자(남성, 60대추정)에 의하면, 자신의 이름 등 신분을 밝히지 아니한채 자신은 임차인인데 103호, 105호, 106호를 점유하고 있다며 다 알고 있으니 그냥 가라고하며 질문에 답하지 않는 등 비협조적이어 구체적인 점유관계를 확인하지 못하였음. 영업은 하지 않고 있는 상태라고 함 3) 본 건 상가건물임대차 현황서에 등재된 임차인 점유로 보고함.

매각결과+

매각일자 / 결과 응찰자수 최고가 금액/응찰자명 차순위 금액

동일사건 물건목록

번호 주소 상태/입찰일 물건내역
1
본건
서울특별시 서초구 사임당로 175, 1층103호 (서초동,갤럭시타워) 배당종결
2024.01.09
-
2 서울특별시 서초구 사임당로 175, 1층105호 (서초동,갤럭시타워) 배당종결
2024.01.09
바로가기
부동산
등기
임차인
그 외

부동산

매각목록

※ 건축물 도면은 ‘건축물 대장의 기재 및 관리에 관한 규칙’ 에 따라 현재 경매가 진행중인 물건에만 제공됩니다.
※ 지분물건의 경우 면적은 지분에 해당하는 면적이 아닌 전체 면적으로 표기됩니다

감정평가

감정평가서 요약

1.구분건물감정평가요항표 1) 위치 및 주위환경 본건은 서울특별시 서초구 서초동 소재 "서울서이초등학교" 인근에 위치하며, 주위는 상업업무시설, 아파트, 오피스텔 등이 혼재한 지역임. 2) 교통상황 본건까지 차량출입이 가능하고, 인근에 버스정류장 및 지하철역이 소재하고 있어 대중교통 사정은 양호함. 3) 건물의 구조 구조: 철근콘크리트구조 (철근)콘크리트지붕 13층 건물 내 1층 103,105,106호로서사용승인일: 2008-04-21 4) 이용상태 기호(가,103호): 현황 사무실 등기호(나 및 다, 105호 및 106호): 음식점으로 이용중임. 5) 설비내역 위생 급배수 설비 및 승강기설비, 화재설비 등이 되어있음. 6) 토지의 형상 및 이용상태 본건은 세장형의 평지로서, 상업업무시설 건부지로 이용중임. 7) 인접 도로상태등 본건은 포장도로에 접해있음. 8) 토지이용계획 및 제한상태 일반상업지역, 가축사육제한구역<가축분뇨의 관리 및 이용에 관한 법률>, 가로구역별 최고높이 제한지역<건축법>, 대공방어협조구역(위탁고도:77-257m)<군사기지 및 군사시설 보호법>, 과밀억제권역<수도권정비계획법>임. 9) 공부와의 차이 --- 10) 기타참고사항(임대관례 및 기타) ---

주변 입주 예정

거리 단지명 공급년월 세대 수
※ 해당 자료는 한국부동산원 청약홈 자료에 근거하며, 인근 5km 이내의 물건을 기준으로 산정되었습니다.

등기

등기부현황

채권합계 3,250,000,000원(2건)
등기일자 권리종류 권리자/채권액 권리
2015-03-06
소유자 김지은 (소유자)
단독소유 -
2017-05-26
(을7)
근저당권설정 남구로신용협동조합 소멸
말소기준 등기 3,120,000,000
2020-12-03
(을7-2)
근저당권이전 유진크레딧밸류전문투자형사모부동산모투자유한회사 소멸
- -
2017-05-26
(을8)
근저당권설정 주식회사엔비캐피탈대부 소멸
- 150,000,000
2017-05-26
(을8-1)
질권 류혜미 소멸
- 130,000,000
2019-06-21
(갑16)
압류 국민건강보험공단 소멸
- -
2020-01-06
(갑17)
압류 서초구(서울특별시) 소멸
- -
2021-10-05
(갑20)
임의경매개시결정
(2021타경109005)
유진크레딧밸류전문투자형사모부동산모투자유한회사 소멸
경매기입 등기 2,963,193,334원
2022-09-01
(갑21)
압류 소멸
- 처분청 기흥세무서장
더보기 더보기
※ 신규 발급등기의 분석자료 반영에는 최대 1일까지 소요될수 있습니다.(등기분석,임차인분석,분석노트 등)

임차인

매각물건 명세서

구분 법원 사건번호 작성일자 매각명세서
1 서울중앙지법 2021타경109005[1] 2023.12.21
구분 법원/
사건번호
작성일자 매각명세서
1 서울중앙지법
2021타경109005[1]
2023.12.21

물건 비고(매각 명세서)

-2023.01.09. 임차인 주식회사 파이브트리, 주현하로부터 점포권리비 및 리모델링비 1억5천만원에 대하여 유치권신고서가 제출
되었으나, 그 성립 여부는 불분명함.
-2023.02.02. 신청채권자로부터 유치권배제신청서가 제출되었으나, 그 성립 여부는 불분명함.

임차인현황

임차인 보증금/차임 전입/확정/배당 대항력
[현황조사]
(주)파 이브트 리, 주현하
(점포임차인)
점유부분:
1층 103호,1 05호,10 6호
보증:
50,000,000
차임:
16,000,000
사업: 2016-10-28
확정: 미상
배당: -
-
[현황조사]
(주)해 바라,김 영득
(점포임차인)
점유부분:
103호
보증:
30,000,000
차임:
1,000,000
사업: 2016-12-19
확정: 미상
배당: -
-
시선바 로세움 주식회 사
(점포임차인)
점유부분:
103호
보증:
2천5백만원
차임:
2,500,000
사업: 2021-12-15
확정: 2021-12-15
배당: 2021-12-15
-
주현하
(점포임차인)
점유부분:
지상1층 103,105 ,106호
보증:
400,000,000
차임:
-
사업: 2020-05-04
확정: 2017-09-29
배당: 2021-12-15
-

현황 조사서

조사일시

2021년10월07일14시46분 / 2021년10월08일14시40분

부동산의 현황

- 본 건 부동산은 출입문 입구 안쪽 바닥에 호실 표시가 되어 있고, 105호와 106호 사이 내부 경계벽이 없고 터져 있음.
- 위 임대차 관계는 상가건물임대차 현황서에 의함.

점유 조사

[목록1]1) 본 건 부동산의 상가건물임대차 현황서에 3명이 임차인으로 등재되어 있으며, 2) 본 건 부동산에 임하여 만난 성명불상 점유자(남성, 60대추정)에 의하면, 자신의 이름 등 신분을 밝히지 아니한채 자신은 임차인인데 103호, 105호, 106호를 점유하고 있다며 다 알고 있으니 그냥 가라고하며 질문에 답하지 않는 등 비협조적이어 구체적인 점유관계를 확인하지 못하였음. 영업은 하지 않고 있는 상태라고 함 3) 본 건 상가건물임대차 현황서에 등재된 임차인 점유로 보고함.

1
소재지 서울특별시서초구사임당로175,1층103호(서초동,갤럭시타워)
점유인 (주)해바라,김영득(임차인)
점유부분 103호(점포)
점유기간 2016.12.30.~2018.12.30.
보증금/차임 30,000,000/1,000,000
전입/확정일자 2016.12.19/미상
2
소재지 서울특별시서초구사임당로175,1층103호(서초동,갤럭시타워)
점유인 (주)파이브트리, 주현하(임차인)
점유부분 1층 103호,105호,106호(점포)
점유기간 2016.10.25.~2018.10.24.
보증금/차임 50,000,000/16,000,000
전입/확정일자 2016.10.28/미상
3
소재지 서울특별시서초구사임당로175,1층103호(서초동,갤럭시타워)
점유인 주현하(임차인)
점유부분 1층 103,105,106호(점포)
점유기간 2017.09.25.~2022.09.25.
보증금/차임 400,000,000/미상
전입/확정일자 2020.05.04/2020.05.04

미납관리비 조사내역

확인일자 미납금액 관리소번호 메모

※ 해당 정보는 참고용으로 제공되며 입찰 전 반드시 관리사무소를 통해 직접 확인하시기 바랍니다.

시세

전문가

그외

관할법원 관할법원 (입찰장소)

서울중앙지방법원 본원

경매3계 : 02-530-1114

서울 서초구 서초동 1701-1 주소복사

Q&A Q&A

Q. 대법원경매가 무엇인가요?누구나 입찰에 참여할 수 있나요?

경매채무자(빌린 자)가 채무를 갚지 않았을 때 채권자(빌려준 자)의 신청으로 대법원이 채무자의 재산을 대신 매각하는 과정을 말합니다.

법원은 감정인에게 자산을 평가하게 한 후, 최저가를 정하여 그 금액 이상으로 입찰한 입찰자 중 최고가 매수인을 결정합니다.

대법원의 주관하에 국민 모두가 참여할 수 있습니다.

Q. 경매 입찰은 어떻게 하나요?누구나 입찰에 참여할 수 있나요?

1. 입찰하시고자 하는 경매물건을 정하신 후, 입찰하시고자 하는 입찰가를 최저가 이상으로 정합니다.

2. 해당 물건의 매각기일에 직접 관할법원에 방문하셔서 법원내에 비치된 입찰서를 작성하신 후 입찰하시면 됩니다.

TIP! 법원에 가실 때에는 입찰보증금(최저가의 10~30%)과 신분증을 지참하여 방문하세요.

Q. 용어가 너무 어려워서 내용을 이해하기 어려워요누구나 입찰에 참여할 수 있나요?

매각기일
매각기일은 경매 법원이 부동산에 대하여 매각 입찰을 진행하는 날을 말합니다.

유찰
매각 기일에 매수하고자 하는 사람이 없어 매각되지 않아 무효가 되는 것을 유찰이라고 합니다.

최저 매각 가격
최초 경매를 진행할때 감정인이 평가한 가격을 기준으로 책정한 금액이며 입찰자는 최저 매각 가격과 동일하거나 이상의 금액으로 입찰해야 합니다. 매각 기일에 있어 입찰자가 없어 유찰되면 통상 20~30% 저감된 금액이 다음 최저 매각 가격이 됩니다.

매수 보증금
경매 물건을 매수하고자 하는사람은 최저 매각 가격의 10분의 1(다르게 정해질 수 있음)에 해당하는 보증금액을 입찰표와 함께 집행관에게 제출하는 방법으로 제공합니다. 매각 절차가 종결된 후 집행관은 최고가 매수신고인이나 차순위매수신고인 이외의 매수신청인에게는 즉시 매수 보증금을 반환해 줍니다.

더 많은 내용을 알고 싶다면 경매마당 학습하기 코너에 준비된 용어설명을 이용해보세요.

경매정보는 법원자료와 일치하도록 하였으나 권리사항변동, 입력착오 등의 원인으로 사실과 다를 수 있습니다. 이용약관에 의거 면책조건으로 제공됨을 알리며, 경매입찰시 반드시 관련 공부를 재확인하시기 바랍니다.

PC버전으로 보기