알림

알림 내역

알림 신청내역/취소

로고 서울남부지방법원 본원 [경매3계] 2024타경140157[2]
서울특별시 강서구 양천로 400-12, 제1층 제102호 (가양동, 더리브골드타워)

서울 강서구 등촌동 849

주소복사
경매구분 임의경매
용도 상가
토지 13.78㎡(4.2평)
건물 57.96㎡(17.5평)
감정가 1,220,000,000원
최저가 399,770,000원
보증금 39,977,000원 (10%)
청구액 2,533,434,035원
개시결정 2024년 11월 04일
감정일 2024년 11월 15일
배당종기 2025년 02월 04일
매각일 2025년 10월 30일
2024타경140157[2]
2024타경140157[2]
2024타경140157[2]
2024타경140157[2]
2024타경140157[2]
2024타경140157[2]
2024타경140157[2]
2024타경140157[2]
2024타경140157[2]
2024타경140157[2]
2024타경140157[2]
2024타경140157[2]
2024타경140157[2]
2024타경140157[2]
2024타경140157[2]
2024타경140157[2]
감정가
12억2000만원
최저가 67%
3억9977만원
변경 2025년 10월 30일
유찰 5회
유찰 5회
경매구분 임의경매
용도 상가
토지 13.78㎡(4.2평)
건물 57.96㎡(17.5평)
감정가 1,220,000,000원
최저가 399,770,000원
보증금 39,977,000원 (10%)
청구액 2,533,434,035원
개시결정 2024년 11월 04일
감정일 2024년 11월 15일
배당종기 2025년 02월 04일
매각일 2025년 10월 30일
변경 2025년 10월 30일

당사자 내역

채무자겸소유자 주OOOOOOOOO
채권자 주OOOOOOOOOOOOOOOOOOOOOOOOOOOOOOOOO
가압류권자 최OO
가압류권자 주OO
가압류권자 심OO
가압류권자 조OO
가압류권자 홍OO
가압류권자 주OOOOOOOO
가압류권자 문OO
가압류권자 남OO
가압류권자 김OO
가압류권자 최OO
가압류권자 이OO
가압류권자 박OO
가압류권자 주OOOOOOOOO
가압류권자 최OO
가압류권자 유OO
가압류권자 주OOOOOOOOOOO
가압류권자 에OOOOOOOOOOOOO
가압류권자 신OO
가압류권자 최OO
가압류권자 김OO
가압류권자 김OO
가압류권자 박OO
가압류권자 김OO
가압류권자 주OOOOOOOO
가압류권자 이OO
가압류권자 한OO
가압류권자 주OOOOOO
가압류권자 주OOOOOOOOOO
가압류권자 주OOOOOOOOOO
가압류권자 최OO
가압류권자 도OO
가압류권자 송OO
가압류권자 이OO
가압류권자 주OOOOOOO
가압류권자 정OO
가압류권자 최OO
가압류권자 한OOOOOOOOOO
가압류권자 주OOOOOOOOO
가압류권자 주OOOOOOOOO
가압류권자 주OOOOOOOOOOOOO
가압류권자 유OO
가압류권자 최OO
가압류권자 최OO
가압류권자 최OO
가압류권자 송OO
가압류권자 시OOOOOOOO
가압류권자 권OO
가압류권자 이OO
가압류권자 류OO
가압류권자 권OO
가압류권자 서OO
가압류권자 김OO
가압류권자 문OO
가압류권자 이OO
가압류권자 정OO
가압류권자 조OO
가압류권자 김OO
가압류권자 김OO
가압류권자 엄OO
가압류권자 곽OO
가압류권자 주OOOOOOOOOO
가압류권자 서OO
가압류권자 김OO
가압류권자 이OO
가압류권자 김OO
가압류권자 성OO
가압류권자 정OO
가압류권자 문OO
가압류권자 문OO
가압류권자 고OO
가압류권자 주OOOOOOOO
가압류권자 유OO
가압류권자 이OO
가압류권자 한OO
가압류권자 류OO
가압류권자 주OOOOOOOOOO
가압류권자 김OO
가압류권자 이OO
가압류권자 김OO
가압류권자 신OOOOOOOO
가압류권자 주OOOOOOOOO
가압류권자 김OO
가압류권자 주OOOOOOO
가압류권자 오OO
가압류권자 이OO
가압류권자 김OO
가압류권자 황OO
가압류권자 양OO
가압류권자 김OO
가압류권자 조OO
가압류권자 권OO
가압류권자 주OOOOOOOOOO
가압류권자 조OO
가압류권자 조OO
가압류권자 이O
가압류권자 심OO
가압류권자 윤OO
가압류권자 김OO
가압류권자 김OO
가압류권자 박OO
가압류권자 남OO
가압류권자 윤OO
가압류권자 조OO
가압류권자 이OO
가압류권자 박OO
가압류권자 남OO
가압류권자 남OO
가압류권자 김OO
가압류권자 신OO
가압류권자 강OO
가압류권자 라OOOOOOOOOOO
임차인 손OO
근저당권자 주OOOOOOOOOOOOOOOOOOOOOOOOOOOOOOOOO
근저당권자 주OOOOOOOO
가압류권자 이OO
가압류권자 신OO
가압류권자 강OO
가압류권자 이OO
가압류권자 장OO
가압류권자 주OOOOOO
가압류권자 신OO
교부권자 강OOOO
교부권자 서OOOOOOOO
가압류권자 주OOOOOOOO
가압류권자 주OOOOOOOOOO
가압류권자 허OO
가압류권자 주OOOOOOOOO
가압류권자 오OO
가압류권자 주OOOOOOO
가압류권자 최OO
가압류권자 박OO
가압류권자 박OO
가압류권자 주OOOOOOOOOOOOO
가압류권자 예OOOOOOOO
가압류권자 김OO
가압류권자 김OO
가압류권자 최OO
가압류권자 김OO
가압류권자 최OO
가압류권자 윤OO
가압류권자 성OOOOOOOOOOOO
가압류권자 임OO
가압류권자 테OOOOOOOOO
가압류권자 김OO
가압류권자 임OO
가압류권자 이OO
가압류권자 최OO
가압류권자 김OO
가압류권자 최OO
가압류권자 주OOOOOOOOOOOOO
가압류권자 심OO
가압류권자 전OO
가압류권자 유OO
가압류권자 박OO
가압류권자 김OO
가압류권자 이OO
가압류권자 박OO
가압류권자 윤OO
가압류권자 박OO
가압류권자 하OO
가압류권자 원OO
가압류권자 이OO
가압류권자 서OO
가압류권자 유OOOOOOO
가압류권자 박OO
가압류권자 진OO
가압류권자 김OO
가압류권자 신OO
가압류권자 이OO
가압류권자 송OO
가압류권자 주OOOOOOO
가압류권자 정OO
가압류권자 김OO
가압류권자 주OOOOOOOO

기일 내역

2025.10.30(10:00)
기일변경
2025.09.23(10:00)
4억9971만2000원 유찰
2025.08.05(10:00)
6억2464만원 유찰
2025.06.25(10:00)
7억8080만원 유찰
2025.05.14(10:00)
9억7600만원 유찰
2025.03.26(10:00)
12억2000만원 유찰

기일 변경(2025년10월24일)

2025.10.24. 변경 후 추후지정

물건 비고(매각 명세서)

- 집합건축물대장상 ‘제2종근린생활시설(일반음식점)’로 등재되어 있고, 현재 공실임

점유 조사(현황 조사서)

[목록2]현황조사차 현장을 방문하였으나 폐문부재로 아무도 만나지 못하여 점유관계는 미상이며, 안내문을 출입문에 끼워놓았음. 덧붙인 전입세대확인서, 외국인체류확인서, 상가건물임대차현황서에는 각 등재자가 없음

매각결과+

매각일자 / 결과 응찰자수 최고가 금액/응찰자명 차순위 금액

동일사건 물건목록

번호 주소 상태/입찰일 물건내역
1 서울특별시 강서구 양천로 400-12, 제1층 제101호 (가양동, 더리브골드타워) 변경
2025.10.30
바로가기
2
본건
서울특별시 강서구 양천로 400-12, 제1층 제102호 (가양동, 더리브골드타워) 변경
2025.10.30
-
3 서울특별시 강서구 양천로 400-12, 제1층 제103호 (가양동, 더리브골드타워) 변경
2025.10.30
바로가기
4 서울특별시 강서구 양천로 400-12, 제1층 제108호 (가양동, 더리브골드타워) 변경
2025.10.30
바로가기
5 서울특별시 강서구 양천로 400-12, 제1층 제111호 (가양동, 더리브골드타워) 변경
2025.10.30
바로가기
부동산
등기
임차인
그 외

부동산

매각목록

부동산 현황

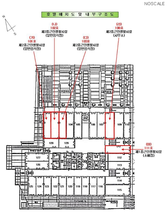
1) 위치 및 주위환경 본건은 서울특별시 강서구 등촌동 소재 지하철역 9호선 "양천향교역" 남동측 인근에 위치하며 인근은 근린생활시설, 지식산업센터 및 아파트 등이 소재하는 등 제반 주위환경은 보통입니다. 2) 교통상황 인근에 버스정류장 및 지하철역 9호선 "양천향교역" 및 "가양역(부민병원)" 등이 위치하는 등 제반 교통상황은 보통입니다. 3) 건물의 구조 철근콘크리트구조 평스라브지붕 지하4층 지상12층 건물 내 제1층 제101호 외 4개호로서, 외벽 : 커튼월 및 외장판넬마감 등, 내벽 : 인테리어 마감 등, 창호 : 새시창호 등입니다. 4) 이용상태 기호 (가)-(다) : 공부상 제2종근린생활시설(일반음식점)이나, 현황 공실입니다. 기호 (라) : 공부상 제2종근린생활시설(사무소)이나, 현황 공실입니다. 기호 (마) : 공부상 제1종근린생활시설(소매점)이나, 현황 공실입니다. 5) 설비내역 기본적인 위생 및 급배수설비, 소화설비, 화재탐지설비, 승강기설비 등을 갖추고 있습니다. 6) 토지의 형상 및 이용상태 인근 토지 대비 등고평탄한 2필 일단의 부정형 토지로서 상업용 및 공업용 건부지로 이용중입니다. 7) 인접 도로상태등 본건 북동측으로 노폭 약 35M, 남서측으로 노폭 약 10M 내외의 포장도로와 각각 접합니다. 8) 토지이용계획 및 제한상태 기호(1) : 도시지역 , 준공업지역 , 중요시설물보호지구(공항) , 도로(접합), 가축사육제한구역(지역경제과 확인 요망)<가축분뇨의 관리 및 이용에 관한 법률>, 가로구역별 최고높이 제한지역(2015-08-27)<건축법>, 수평표면구역(수평표면)<공항시설법>, 상대보호구역(2015-03-26)(강서교육지원청에 반드시 확인 요망)<교육환경 보호에 관한 법률>, 상대보호구역(강서교육지원청에 반드시 확인 요망)<교육환경 보호에 관한 법률>, 절대보호구역(강서교육지원청에 반드시 확인 요망)<교육환경 보호에 관한 법률>, 대공방어협조구역(위탁고도:77-257m)<군사기지 및 군사시설 보호법>, 과밀억제권역<수도권정비계획법>, 지역특화발전특구<지역특화발전 특구에 대한 규제특례법>, (한강)폐기물매립시설 설치제한지역<한강수계 상수원수질개선 및 주민지원 등에 관한 법률>, 건축선(2019-04-03) 기호(2) : 도시지역 , 준공업지역 , 중요시설물보호지구(공항), 가축사육제한구역(지역경제과 확인 요망)<가축분뇨의 관리 및 이용에 관한 법률>, 가로구역별 최고높이 제한지역(2015-08-27)<건축법>, 수평표면구역(수평표면)<공항시설법>, 상대보호구역(2015-03-26)(강서교육지원청에 반드시 확인 요망)<교육환경 보호에 관한 법률>, 상대보호구역(강서교육지원청에 반드시 확인 요망)<교육환경 보호에 관한 법률>, 절대보호구역(강서교육지원청에 반드시 확인 요망)<교육환경 보호에 관한 법률>, 대공방어협조구역(위탁고도:77-257m)<군사기지 및 군사시설 보호법>, 과밀억제권역<수도권정비계획법>, 지역특화발전특구<지역특화발전 특구에 대한 규제특례법>, (한강)폐기물매립시설 설치제한지역<한강수계 상수원수질개선 및 주민지원 등에 관한 법률>, 건축선(2019-04-03) 9) 공부와의 차이 해당사항 없습니다. 10) 기타참고사항(임대관례 및 기타) 미상입니다.

감정평가

주변 입주 예정

거리 단지명 공급년월 세대 수
※ 해당 자료는 한국부동산원 청약홈 자료에 근거하며, 인근 5km 이내의 물건을 기준으로 산정되었습니다.

등기

등기부현황

채권합계 -
등기일자 권리종류 권리자/채권액 권리
등기자료 조사 중 입니다.
※ 신규 발급등기의 분석자료 반영에는 최대 1일까지 소요될수 있습니다.(등기분석,임차인분석,분석노트 등)

임차인

매각물건 명세서

구분 법원 사건번호 작성일자 매각명세서
1 서울남부지법 2024타경140157[2] 2025. 9. 9.
2 서울남부지법 2024타경140157[2] 2025. 3. 12.
구분 법원/
사건번호
작성일자 매각명세서
1 서울남부지법
2024타경140157[2]
2025. 9. 9.
2 서울남부지법
2024타경140157[2]
2025. 3. 12.

물건 비고(매각 명세서)

- 집합건축물대장상 ‘제2종근린생활시설(일반음식점)’로 등재되어 있고, 현재 공실임

임차인현황

임차인 보증금/차임 전입/확정/배당 대항력
매각물건명세서상 임차인이 존재하지 않습니다.

현황 조사서

조사일시

2024년11월09일14시55분

부동산의 현황

-

점유 조사

[목록2]현황조사차 현장을 방문하였으나 폐문부재로 아무도 만나지 못하여 점유관계는 미상이며, 안내문을 출입문에 끼워놓았음. 덧붙인 전입세대확인서, 외국인체류확인서, 상가건물임대차현황서에는 각 등재자가 없음

미납관리비 조사내역

확인일자 미납금액 관리소번호 메모

※ 해당 정보는 참고용으로 제공되며 입찰 전 반드시 관리사무소를 통해 직접 확인하시기 바랍니다.

시세

전문가

그외

관할법원 관할법원 (입찰장소)

서울남부지방법원 본원

경매3계 : 02-2192-1114

서울 양천구 신정동 313-1 주소복사

Q&A Q&A

Q. 대법원경매가 무엇인가요?누구나 입찰에 참여할 수 있나요?

경매채무자(빌린 자)가 채무를 갚지 않았을 때 채권자(빌려준 자)의 신청으로 대법원이 채무자의 재산을 대신 매각하는 과정을 말합니다.

법원은 감정인에게 자산을 평가하게 한 후, 최저가를 정하여 그 금액 이상으로 입찰한 입찰자 중 최고가 매수인을 결정합니다.

대법원의 주관하에 국민 모두가 참여할 수 있습니다.

Q. 경매 입찰은 어떻게 하나요?누구나 입찰에 참여할 수 있나요?

1. 입찰하시고자 하는 경매물건을 정하신 후, 입찰하시고자 하는 입찰가를 최저가 이상으로 정합니다.

2. 해당 물건의 매각기일에 직접 관할법원에 방문하셔서 법원내에 비치된 입찰서를 작성하신 후 입찰하시면 됩니다.

TIP! 법원에 가실 때에는 입찰보증금(최저가의 10~30%)과 신분증을 지참하여 방문하세요.

Q. 용어가 너무 어려워서 내용을 이해하기 어려워요누구나 입찰에 참여할 수 있나요?

매각기일
매각기일은 경매 법원이 부동산에 대하여 매각 입찰을 진행하는 날을 말합니다.

유찰
매각 기일에 매수하고자 하는 사람이 없어 매각되지 않아 무효가 되는 것을 유찰이라고 합니다.

최저 매각 가격
최초 경매를 진행할때 감정인이 평가한 가격을 기준으로 책정한 금액이며 입찰자는 최저 매각 가격과 동일하거나 이상의 금액으로 입찰해야 합니다. 매각 기일에 있어 입찰자가 없어 유찰되면 통상 20~30% 저감된 금액이 다음 최저 매각 가격이 됩니다.

매수 보증금
경매 물건을 매수하고자 하는사람은 최저 매각 가격의 10분의 1(다르게 정해질 수 있음)에 해당하는 보증금액을 입찰표와 함께 집행관에게 제출하는 방법으로 제공합니다. 매각 절차가 종결된 후 집행관은 최고가 매수신고인이나 차순위매수신고인 이외의 매수신청인에게는 즉시 매수 보증금을 반환해 줍니다.

더 많은 내용을 알고 싶다면 경매마당 학습하기 코너에 준비된 용어설명을 이용해보세요.

경매정보는 법원자료와 일치하도록 하였으나 권리사항변동, 입력착오 등의 원인으로 사실과 다를 수 있습니다. 이용약관에 의거 면책조건으로 제공됨을 알리며, 경매입찰시 반드시 관련 공부를 재확인하시기 바랍니다.

PC버전으로 보기