알림

알림 내역

알림 신청내역/취소

대법원
물건내역
사건내역
기일내역
송달내역
현황조사
물건목록
지도
사진보기
문서
매각기일공고문
매각물건명세서
감정평가서
등기부등본
전입세대열람원 M
건축물대장 M
분석
예상배당표 M
수익률분석 M
입찰가분석 M
조회수분석 M
인근지역통계 M
사이트
대법원
국토부 실거래가
토지이음
아실
네이버 단지정보
네이버 매물정보
호갱노노
부동산플래닛
로고 수원지방법원 평택지원 [경매1계] 2023타경3931[2]
경기도 평택시 팽성읍 두정리 163-21

경기 평택시 팽성읍 두정리 163-21

주소복사
경매구분 임의경매
용도
토지 44㎡(13.31평)
건물 -
감정가 21,120,000원
최저가 5,071,010원
보증금 507,200원 (10%)
청구액 1,206,361,947원
개시결정 2023년 10월 19일
감정일 2023년 11월 03일
배당종기 2024년 01월 16일
매각일 2026년 01월 26일
2023타경3931[2]
2023타경3931[2]
2023타경3931[2]
2023타경3931[2]
2023타경3931[2]
2023타경3931[2]
2023타경3931[2]
2023타경3931[2]
2023타경3931[2]
2023타경3931[2]
2023타경3931[2]
2023타경3931[2]
2023타경3931[2]
2023타경3931[2]
2023타경3931[2]
2023타경3931[2]
2023타경3931[2]
2023타경3931[2]
2023타경3931[2]
2023타경3931[2]
2023타경3931[2]
2023타경3931[2]
2023타경3931[2]
감정가
2112만원
최저가 76%
507만1010원
공고 2026년 01월 26일 입찰 D-19일
유찰 4회농지취득자격증명
유찰 4회농지취득자격증명
경매구분 임의경매
용도
토지 44㎡(13.31평)
건물 -
감정가 21,120,000원
최저가 5,071,010원
보증금 507,200원 (10%)
청구액 1,206,361,947원
개시결정 2023년 10월 19일
감정일 2023년 11월 03일
배당종기 2024년 01월 16일
매각일 2026년 01월 26일
공고 2026년 01월 26일 입찰 D-19일

당사자 내역

소유자 김OO
채무자겸소유자 이O
채권자 음OOOOOOO
승계인 농OOOOOOOOOOO
근저당권자 박OO
압류권자 기OOOO
교부권자 평OO
배당요구권자 박OO
압류권자 평OO
지상권자 음OOOOOOO

기일 내역

2026.01.26(10:00)
507만1010원 진행
2025.12.08(10:00)
724만4300원 유찰
2025.08.11(10:00)
기일변경
2024.12.09(10:00)
기일변경
2024.10.28(10:00)
1034만9000원 유찰
2024.09.23(10:00)
1478만4000원 유찰
2024.07.22(10:00)
2112만원 유찰

매각공고

기일 변경(2025년08월08일)

2025.8.8. 변경 후 추후지정

물건 비고(공고문)

농지취득자격증명 요함(미제출시 매수보증금 반환하지 않음.)

물건 비고(매각 명세서)

농지취득자격증명 요함(미제출시 매수보증금 반환하지 않음.)

현황 조사(현황 조사서)

목록1: 일부가 폭 약 3미터 포장도로 및 목록2,3 토지와 인접하고, 공부상 지목은 답이나, 현황은 목록2,3 토지와 함께 경계구분 없이 군데 군데 배나무가 있고 대부분 잡초가 무성한 나지 상태로 보임. 목록2: 일부가 폭 약 3미터 포장도로 및 목록1,3 토지와 인접하고, 공부상 지목은 전이나, 현황은 목록1

점유 조사(현황 조사서)

[목록5]* 점유자를 만나지 못하여 점유관계를 알 수 없음.

매각결과+

매각일자 / 결과 응찰자수 최고가 금액/응찰자명 차순위 금액

현황정보

매각목록

부동산 현황

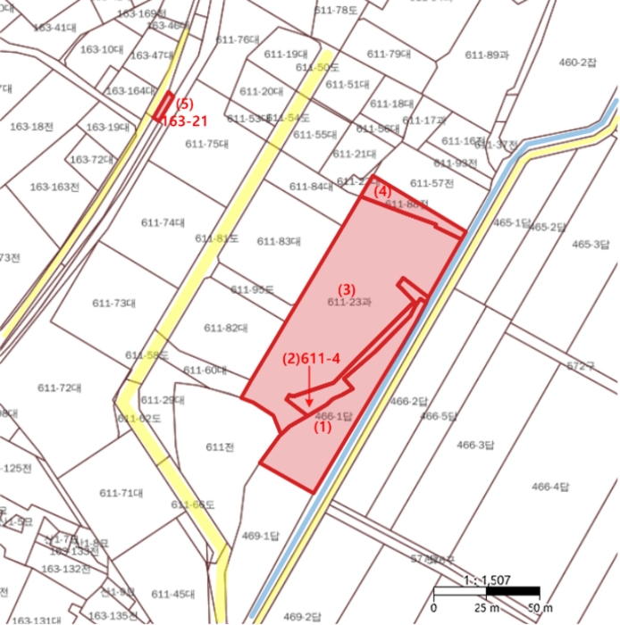
1) 위치 및 주위환경 -기호(1-4) 경기도 평택시 팽성읍 송화리 "팽성읍 하수처리장"남서측인근에 위치하며 주위는 미군랜트 하우스(더 캐슬,더 험프리 힐스 등)가 밀집소재하는 외 동측은 순수 농경지대임. -기호(5) 경기도 평택시 팽성읍 두정리 "두정리마을"내 위치하며 부근은 농가주택이 소재하는외 동측은 미군랜트하우스 등이 소재함. 2) 교통상황 차량의 접근이 용이하고 남측인근에 평택역을 경유하는 노선버스(1215번)가 운행하는 등 교통여건은 무난한 편임.. 3) 형태 및 이용상태 -기호(1,2,4) 잡초가 무성한 부정형의 토지임. -기호(3) 지상에 과수목이 소재하는 부정형의 토지로 서북측으로 접하는 연립주택(험프리힐스 단지) 부지와의 사이로 자체진입도로부분으로 이용한 것으로 보이는 폭 약3-4미터정도의 평탄한 정지부분이 있음. -기호(5) 장방형의 잡종지상태임. 4) 인접 도로상태 -기호(1-4) 동측으로 세로(가)콘크리트 포장도로와 접함. -기호(5) 서측으로 세로(가)콘크리트 포장도로와 접함. 5) 토지이용계획 및 제한상태 □ (1) 송화리 466-1 자연녹지지역, 가축사육제한구역(2022-01-26)(일부제한 300m 이내 - 전 축종 제한) <가축분뇨의 관리 및 이용에 관한 법률>, 비행안전제5구역(전술)<군사기지 및 군사시설 보호법> □ (2) 송화리 611-4 자연녹지지역, 가축사육제한구역(2022-01-26)(일부제한 300m 이내 - 전 축종 제한) <가축분뇨의 관리 및 이용에 관한 법률>, 비행안전제5구역(전술)<군사기지 및 군사시설 보호법> □ (3) 송화리 611-23 자연녹지지역, 가축사육제한구역(2022-01-26)(일부제한 300m 이내 - 전 축종 제한) <가축분뇨의 관리 및 이용에 관한 법률>, 비행안전제5구역(전술)<군사기지 및 군사시설 보호법> □ (4) 송화리 611-88 자연녹지지역, 가축사육제한구역(2022-01-26)(일부제한 300m 이내 - 전 축종 제한) <가축분뇨의 관리 및 이용에 관한 법률>, 비행안전제5구역(전술)<군사기지 및 군사시설 보호법> □ (5) 두정리 163-21 자연녹지지역, 자연취락지구, 소로2류(폭 8m-10m)(접합), 가축사육제한구역(2022-01-26)(일부제한 300m 이내 - 전 축종 제한) <가축분뇨의 관리 및 이용에 관한 법률>, 비행안전제5구역(전술)<군사기지 및 군사시설 보호법> 6) 제시목록 외의 물건 없음 7) 공부와의 차이 본건의 공부상 지목이 기호(1)답,기호(2,4,5)는 전이나 현황은 잡종지 상태임. 8) 기타참고사항(임대관례 및 기타) (1)임대관계:미상

주변 입주 예정

거리 단지명 공급년월 세대 수
※ 해당 자료는 한국부동산원 청약홈 자료에 근거하며, 인근 5km 이내의 물건을 기준으로 산정되었습니다.

등기

등기부현황

채권합계 1,500,000,000원(1건)
등기일자 권리종류 권리자/채권액 권리
2017-08-21
(을1)
근저당권설정 OOOO 소멸
말소기준 등기 3,250,000,000원
2018-05-04
(을1-1)
근저당권변경 OOOO 소멸
- 1,500,000,000원
2017-08-21
(을2)
지상권설정 OOOO 소멸
- 목 적 건물 기타 공작물이나 수목의 소유
2023-10-19
(갑5)
임의경매개시결정
(2023타경3931)
OOOO 소멸
경매기입 등기 1,206,361,947원
2024-04-30
(갑6)
압류 OOOO 소멸
- -
더보기
※ 신규 발급등기의 분석자료 반영에는 최대 1일까지 소요될수 있습니다.(등기분석,임차인분석,분석노트 등)

임차인

매각물건 명세서

구분 법원 사건번호 작성일자 매각명세서
1 평택지원 2023타경3931[2] 2025. 11. 4.
2 평택지원 2023타경3931[2] 2025. 7. 23.
3 평택지원 2023타경3931[2] 2024.11.19
4 평택지원 2023타경3931[2] 2024.11.19
구분 법원/
사건번호
작성일자 매각명세서
1 평택지원
2023타경3931[2]
2025. 11. 4.
2 평택지원
2023타경3931[2]
2025. 7. 23.
3 평택지원
2023타경3931[2]
2024.11.19
4 평택지원
2023타경3931[2]
2024.11.19

물건 비고(매각 명세서)

농지취득자격증명 요함(미제출시 매수보증금 반환하지 않음.)

임차인현황

임차인 보증금/차임 전입/확정/배당 대항력
매각물건명세서상 임차인이 존재하지 않습니다.

현황 조사서

조사일시

2023년10월25일10시21분

부동산의 현황

목록1: 일부가 폭 약 3미터 포장도로 및 목록2,3 토지와 인접하고, 공부상 지목은 답이나, 현황은 목록2,3 토지와 함께 경계구분 없이 군데 군데 배나무가 있고 대부분 잡초가 무성한 나지 상태로 보임. 목록2: 일부가 폭 약 3미터 포장도로 및 목록1,3 토지와 인접하고, 공부상 지목은 전이나, 현황은 목록1

점유 조사

[목록5]* 점유자를 만나지 못하여 점유관계를 알 수 없음.

조사일시

2023년10월25일10시21분

부동산의 현황

목록1: 일부가 폭 약 3미터 포장도로 및 목록2,3 토지와 인접하고, 공부상 지목은 답이나, 현황은 목록2,3 토지와 함께 경계구분 없이 군데 군데 배나무가 있고 대부분 잡초가 무성한 나지 상태로 보임.
목록2: 일부가 폭 약 3미터 포장도로 및 목록1,3 토지와 인접하고, 공부상 지목은 전이나, 현황은 목록1,3토지와 함께 경계구분 없이 군데 군데 배나무가 있고 대부분 잡초가 무성한 나지 상태로 보임.
목록3: 일부가 폭 약 3미터 포장도로 및 목록1,2,4 토지와 인접하고, 공부상 지목은 과수원이나, 현황은 목록1,2,4 토지와 함께 경계구분 없이 군데 군데 배나무가 있고 대부분 잡초가 무성한 나지 상태로 보임.
목록4: 일부가 폭 약 3미터 포장도로 및 목록3 토지와 인접하고, 공부상 지목은 전이나, 현황은 목록3 토지와 함께 경계구분 없이 군데 군데 배나무가 있고 대부분 잡초가 무성한 나지 상태로 보임.
목록5: 일부가 폭 약 3미터 포장도로와 인접한 비포장 나지 상태로 보이고, 일부 지상은 감나무 등이 식재되어 있는 것으로 보임.

점유 조사

[목록5]* 점유자를 만나지 못하여 점유관계를 알 수 없음.

미납관리비 조사내역

확인일자 미납금액 관리소번호 메모

※ 해당 정보는 참고용으로 제공되며 입찰 전 반드시 관리사무소를 통해 직접 확인하시기 바랍니다.

시세분석

기타

전문가

관할법원 (입찰장소)

수원지방법원 평택지원

경매1계 : 031-650-3114

경기 평택시 동삭동 663 주소복사

Q&A

Q. 대법원경매가 무엇인가요?누구나 입찰에 참여할 수 있나요?

경매채무자(빌린 자)가 채무를 갚지 않았을 때 채권자(빌려준 자)의 신청으로 대법원이 채무자의 재산을 대신 매각하는 과정을 말합니다.

법원은 감정인에게 자산을 평가하게 한 후, 최저가를 정하여 그 금액 이상으로 입찰한 입찰자 중 최고가 매수인을 결정합니다.

대법원의 주관하에 국민 모두가 참여할 수 있습니다.

Q. 경매 입찰은 어떻게 하나요?누구나 입찰에 참여할 수 있나요?

1. 입찰하시고자 하는 경매물건을 정하신 후, 입찰하시고자 하는 입찰가를 최저가 이상으로 정합니다.

2. 해당 물건의 매각기일에 직접 관할법원에 방문하셔서 법원내에 비치된 입찰서를 작성하신 후 입찰하시면 됩니다.

TIP! 법원에 가실 때에는 입찰보증금(최저가의 10~30%)과 신분증을 지참하여 방문하세요.

Q. 용어가 너무 어려워서 내용을 이해하기 어려워요누구나 입찰에 참여할 수 있나요?

매각기일
매각기일은 경매 법원이 부동산에 대하여 매각 입찰을 진행하는 날을 말합니다.

유찰
매각 기일에 매수하고자 하는 사람이 없어 매각되지 않아 무효가 되는 것을 유찰이라고 합니다.

최저 매각 가격
최초 경매를 진행할때 감정인이 평가한 가격을 기준으로 책정한 금액이며 입찰자는 최저 매각 가격과 동일하거나 이상의 금액으로 입찰해야 합니다. 매각 기일에 있어 입찰자가 없어 유찰되면 통상 20~30% 저감된 금액이 다음 최저 매각 가격이 됩니다.

매수 보증금
경매 물건을 매수하고자 하는사람은 최저 매각 가격의 10분의 1(다르게 정해질 수 있음)에 해당하는 보증금액을 입찰표와 함께 집행관에게 제출하는 방법으로 제공합니다. 매각 절차가 종결된 후 집행관은 최고가 매수신고인이나 차순위매수신고인 이외의 매수신청인에게는 즉시 매수 보증금을 반환해 줍니다.

더 많은 내용을 알고 싶다면 경매마당 학습하기 코너에 준비된 용어설명을 이용해보세요.

경매정보는 법원자료와 일치하도록 하였으나 권리사항변동, 입력착오 등의 원인으로 사실과 다를 수 있습니다. 이용약관에 의거 면책조건으로 제공됨을 알리며, 경매입찰시 반드시 관련 공부를 재확인하시기 바랍니다.

PC버전으로 보기