알림

알림 내역

알림 신청내역/취소

대법원
물건내역
사건내역
기일내역
송달내역
현황조사
지도
사진보기
문서
매각기일공고문
매각물건명세서
감정평가서 M
등기부등본
전입세대열람원 M
건축물대장 M
분석
예상배당표 M
수익률분석 M
입찰가분석 M
조회수분석 M
인근지역통계 M
사이트
대법원
국토부 실거래가
토지이음
아실
네이버 단지정보
네이버 매물정보
호갱노노
부동산플래닛
로고 대전지방법원 본원 [경매5계] 2024타경5738
대전광역시 서구 관저동 1970-9

대전 서구 관저동 1970-9

주소복사
경매구분 임의경매
용도 상가
토지 222.2㎡(67.22평)
건물 381㎡(115.25평)
감정가 1,044,341,053원
최저가 511,727,000원
보증금 51,172,700원 (10%)
청구액 973,568,270원
개시결정 2024년 05월 20일
감정일 2024년 05월 31일
배당종기 2024년 08월 21일
매각일 2025년 06월 04일
2024타경5738
2024타경5738
2024타경5738
2024타경5738
2024타경5738
2024타경5738
2024타경5738
2024타경5738
2024타경5738
2024타경5738
2024타경5738
2024타경5738
2024타경5738
2024타경5738
2024타경5738
2024타경5738
2024타경5738
2024타경5738
2024타경5738
2024타경5738
2024타경5738
2024타경5738
2024타경5738
2024타경5738
2024타경5738
2024타경5738
2024타경5738
2024타경5738
2024타경5738
2024타경5738
2024타경5738
2024타경5738
2024타경5738
2024타경5738
2024타경5738
2024타경5738
2024타경5738
2024타경5738
2024타경5738
2024타경5738
2024타경5738
2024타경5738
감정가
10억4434만1053원
1553만6166원/평 (토지)
최저가 51%
5억1172만7000원
761만2719원/평 (토지)
취하 2025년 06월 04일
유찰 2회유치권
유찰 2회유치권
경매구분 임의경매
용도 상가
토지 222.2㎡(67.22평)
건물 381㎡(115.25평)
감정가 1,044,341,053원
최저가 511,727,000원
보증금 51,172,700원 (10%)
청구액 973,568,270원
개시결정 2024년 05월 20일
감정일 2024년 05월 31일
배당종기 2024년 08월 21일
매각일 2025년 06월 04일
취하 2025년 06월 04일

당사자 내역

채무자겸소유자 한OOOOOOOOOO
채권자 한OOOOOO
가압류권자 한OOOOOO
가압류권자 대OOOOOOOOOO
압류권자 국OOOOOOO
교부권자 서OOOOO
교부권자 국OOOOOOOOOOOO
교부권자 논OOOO
지상권자 한OOOOOO
교부권자 대OOOOOOO

기일 내역

취하/취소
2025.06.04(10:00)
5억1172만7000원 진행
2025.03.26(10:00)
기일변경
2025.01.15(10:00)
기일변경
2024.12.04(10:00)
7억3103만9000원 유찰
2024.10.30(10:00)
10억4434만1053원 유찰

매각공고

취하/취소(2025년06월02일)

2025.6.2. 부동산임의경매 취하/취소

물건 비고(공고문)

-일괄매각 -본건 건물은 공사 중단 상태(공정률 약 90%)임 -현황조사상 유치권자 시공사 선한종합건설의 유치권 행사 중이라는 플랭카드가 부착되어 있음

인수되는 권리/가처분(매각 명세서)

해당사항없음

지상권(매각 명세서)

해당사항없음

물건 비고(매각 명세서)

-일괄매각
-본건 건물은 공사 중단 상태(공정률 약 90%)임
-현황조사상 유치권자 시공사 선한종합건설의 유치권 행사 중이라는 플랭카드가 부착되어 있음

현황 조사(현황 조사서)

- 본건 주택은 현재 공사 중단된 상태로 보이며, 약 70-90% 완공 상태로 보임 - 본건 주택 건물에는 `당 현장은 공사대금을 받지 못하여 유치권행사를 위해 점유하고 있으므로 유치권자의 허락없이 무단 출입을 금합니다. 유치권자 시공사 선한종합건설`라는 내용의 플랭카드가 부착되어 있음 - 붙임 사진과 같음

점유 조사(현황 조사서)

[목록1]목록2번 건물의 대지임
[목록2]ⓐ 폐문으로 해당 관청에 전입세대 확인한 바, 전입세대 없음
ⓑ 폐문으로 해당 관청에 외국인체류확인서를 확인한 바 해당사항 없음
ⓒ 점유 및 임대차 관계 미상으로 안내문 부착

매각결과+

매각일자 / 결과 응찰자수 최고가 금액/응찰자명 차순위 금액

가장 빠른 경매 정보 플랫폼 경매마당
남들보다 먼저 정보를 선점하세요

간단한 로그인 후 바로 이용 가능합니다

bolt 대법원 보다 빠른 물건 정보
verified 가장 많은 경매 물건 제공
trending_up 월 5회 등기부 무료 열람

현황정보

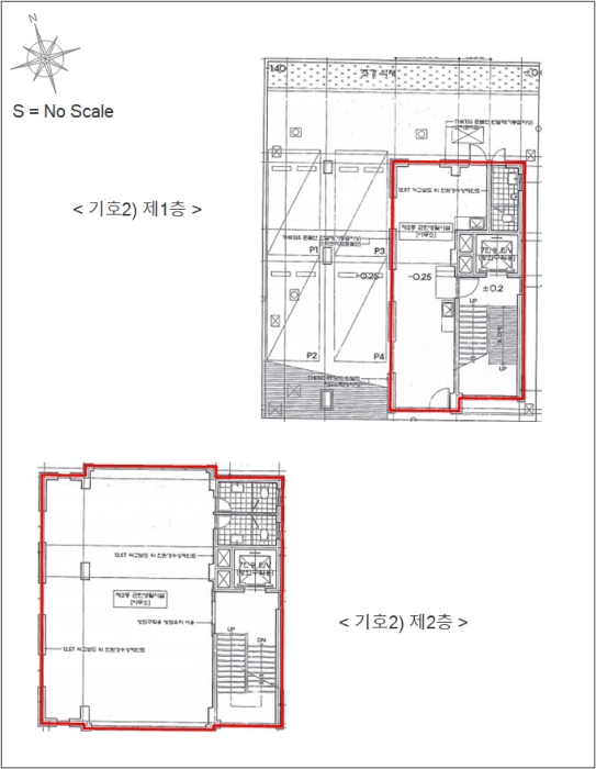
매각목록

부동산 현황

1) 위치 및 주위환경 본건은 대전광역시 서구 관저동 소재 서일여고 서측 인근에 위치하고, 주위는 아파트단지, 다가구주택 및 근린생활시설 등이 혼재하는 성숙중인 주택지대임. 2) 교통상황 본건까지 차량통행 가능하고, 인근에 버스정류장이, 근거리에 서대전ic가 있어 교통상황 비교적 편리한 편임. 3) 형태 및 이용상태 세장형 완경사 토지로서, 다가구주택 건부지로 이용 예정임. 4) 인접 도로상태 본건 남서측으로 소로한면 포장도로에 접함. 5) 토지이용계획 및 제한상태 제2종일반주거지역, 지구단위계획구역(관저4지구 도시개발사업),가축사육제한구역(전부제한) , 상대보호구역(서일고), 상대보호구역(서일여고)에 속하고, 소로2류에 접함. 6) 제시목록 외의 물건 없음. 7) 공부와의 차이 없음. 8) 기타참고사항(임대관례 및 기타) 임대관계 미상이며. 건축공사 중단상태임. 1) 건물의 구조 철근콘크리트구조 철근콘크리트 평지붕 5층 제2종근린생활시설(사무소) 및 단독주택-다가구 주택(3가구) 건물의 건축공사가 완료되지 않아, 사용승인 및 건축물대장 생성이 되지 않은 상태(2024.02월 미등기건물 현황조사보고서 상 공정률 약90%)로서, 외벽 : 치장석재 및 시멘트몰탈 위 페인팅 마감 등 내벽 : 시멘트몰탈 위 페인팅, 벽지 및 타일 등 미완성 상태임. 창호 : 새시 창호 등(창호의 대부분 유리가 부착되지 않은 미완성 상태)임. 2) 이용상태 완공되지 않은 제2종근린생활시설(사무소) 및 단독주택-다가구주택(3가구)으로서, 공사 중단 (공정률 약90%) 상태이며, 추후 완공으로 사용승인 시 다가구주택 및 근린생활시설로 이용 예정임. 3) 설비내역 위생 및 급배수설비, 도시가스 개별난방설비, 승강기 등이 미개통(전기 단전) 상태임. 4) 부합물 및 종물 화단(현재 미조성) 및 확장형 발코니. 5) 공부와의 차이 사용승인 및 건축물대장 생성이 되지 않은 공사 중단상태로 대위등기된 건물이며, 건축허가 면적과 신축 면적에 3.08㎡(3층 다가구주택) 차이가 있는 바, 경미한 사항의 변경 절차를 거쳐 사용승인을 받을 수 있을 것으로 보임. 6) 기타참고사항(임대관례 및 기타) 건축공사가 완료되지 않아, 사용승인 및 건축물대장 생성이 되지 않은 상태이고, 다가구주택 공사 기성고는 현상과 2024.02월 미등기건물 현황조사보고서 상 공정률 약90%를 준용하여 약90%로 판단하였으며, 9개월이상 공사중단(유치권 공시 기준)된 상태로 관찰감가 병용하여 감정평가하였으니, 경매 참가시 공사 기성고 및 건물 상태를 재확인하시기 바람.

주변 입주 예정

거리 단지명 공급년월 세대 수
※ 해당 자료는 한국부동산원 청약홈 자료에 근거하며, 인근 5km 이내의 물건을 기준으로 산정되었습니다.

등기

등기부현황

채권합계 1,722,670,000원(3건)
등기일자 권리종류 권리자/채권액 권리
소유자 한OOOOOOOOOOOOOOO
단독소유 -
2024-04-01
(갑2)
가압류 한OOOOOO 소멸
말소기준 등기 648,679,200원
2024-04-15
(을1)
근저당권설정 한OOOOOO 소멸
- 480,000,000원
2024-04-15
(을2)
근저당권설정 한OOOOOO 소멸
- 594,000,000원
2024-05-20
(갑3)
임의경매개시결정
(2024타경5738)
한OOOOOO 소멸
경매기입 등기 973,568,270원
2024-09-20
(갑4)
압류 논OOOOO 소멸
- -
더보기
※ 신규 발급등기의 분석자료 반영에는 최대 1일까지 소요될수 있습니다.(등기분석,임차인분석,분석노트 등)

임차인

매각물건 명세서

구분 법원 사건번호 작성일자 매각명세서
1 대전지법 2024타경5738[1] 2025. 4. 14.
2 대전지법 2024타경5738[1] 2025. 2. 11.
3 대전지법 2024타경5738[1] 작성일자 미확인
구분 법원/
사건번호
작성일자 매각명세서
1 대전지법
2024타경5738[1]
2025. 4. 14.
2 대전지법
2024타경5738[1]
2025. 2. 11.
3 대전지법
2024타경5738[1]
작성일자 미확인

인수되는 권리/가처분(매각 명세서)

해당사항없음

지상권(매각 명세서)

해당사항없음

물건 비고(매각 명세서)

-일괄매각
-본건 건물은 공사 중단 상태(공정률 약 90%)임
-현황조사상 유치권자 시공사 선한종합건설의 유치권 행사 중이라는 플랭카드가 부착되어 있음

임차인현황

임차인 보증금/차임 전입/확정/배당 대항력
매각물건명세서상 임차인이 존재하지 않습니다.

현황 조사서

조사일시

2024년05월30일10시20분 / 2024년06월01일14시35분

부동산의 현황

- 본건 주택은 현재 공사 중단된 상태로 보이며, 약 70-90% 완공 상태로 보임 - 본건 주택 건물에는 `당 현장은 공사대금을 받지 못하여 유치권행사를 위해 점유하고 있으므로 유치권자의 허락없이 무단 출입을 금합니다. 유치권자 시공사 선한종합건설`라는 내용의 플랭카드가 부착되어 있음 - 붙임 사진과 같음

점유 조사

[목록1]목록2번 건물의 대지임
[목록2]ⓐ 폐문으로 해당 관청에 전입세대 확인한 바, 전입세대 없음
ⓑ 폐문으로 해당 관청에 외국인체류확인서를 확인한 바 해당사항 없음
ⓒ 점유 및 임대차 관계 미상으로 안내문 부착

조사일시

2024년05월30일10시20분 / 2024년06월01일14시35분

부동산의 현황

- 본건 주택은 현재 공사 중단된 상태로 보이며, 약 70-90% 완공 상태로 보임
- 본건 주택 건물에는 `당 현장은 공사대금을 받지 못하여 유치권행사를 위해 점유하고 있으므로 유치권자의 허락없이 무단 출입을 금합니다. 유치권자 시공사 선한종합건설`라는 내용의 플랭카드가 부착되어 있음
- 붙임 사진과 같음

점유 조사

[목록1]목록2번 건물의 대지임
[목록2]ⓐ 폐문으로 해당 관청에 전입세대 확인한 바, 전입세대 없음
ⓑ 폐문으로 해당 관청에 외국인체류확인서를 확인한 바 해당사항 없음
ⓒ 점유 및 임대차 관계 미상으로 안내문 부착

미납관리비 조사내역

확인일자 미납금액 관리소번호 메모

※ 해당 정보는 참고용으로 제공되며 입찰 전 반드시 관리사무소를 통해 직접 확인하시기 바랍니다.

시세분석

인근 낙찰사례

기타

전문가

관할법원 (입찰장소)

대전지방법원 본원

경매5계 : 042-470-1114

대전 서구 둔산동 1390 주소복사

Q&A

Q. 대법원경매가 무엇인가요?누구나 입찰에 참여할 수 있나요?

경매채무자(빌린 자)가 채무를 갚지 않았을 때 채권자(빌려준 자)의 신청으로 대법원이 채무자의 재산을 대신 매각하는 과정을 말합니다.

법원은 감정인에게 자산을 평가하게 한 후, 최저가를 정하여 그 금액 이상으로 입찰한 입찰자 중 최고가 매수인을 결정합니다.

대법원의 주관하에 국민 모두가 참여할 수 있습니다.

Q. 경매 입찰은 어떻게 하나요?누구나 입찰에 참여할 수 있나요?

1. 입찰하시고자 하는 경매물건을 정하신 후, 입찰하시고자 하는 입찰가를 최저가 이상으로 정합니다.

2. 해당 물건의 매각기일에 직접 관할법원에 방문하셔서 법원내에 비치된 입찰서를 작성하신 후 입찰하시면 됩니다.

TIP! 법원에 가실 때에는 입찰보증금(최저가의 10~30%)과 신분증을 지참하여 방문하세요.

Q. 용어가 너무 어려워서 내용을 이해하기 어려워요누구나 입찰에 참여할 수 있나요?

매각기일
매각기일은 경매 법원이 부동산에 대하여 매각 입찰을 진행하는 날을 말합니다.

유찰
매각 기일에 매수하고자 하는 사람이 없어 매각되지 않아 무효가 되는 것을 유찰이라고 합니다.

최저 매각 가격
최초 경매를 진행할때 감정인이 평가한 가격을 기준으로 책정한 금액이며 입찰자는 최저 매각 가격과 동일하거나 이상의 금액으로 입찰해야 합니다. 매각 기일에 있어 입찰자가 없어 유찰되면 통상 20~30% 저감된 금액이 다음 최저 매각 가격이 됩니다.

매수 보증금
경매 물건을 매수하고자 하는사람은 최저 매각 가격의 10분의 1(다르게 정해질 수 있음)에 해당하는 보증금액을 입찰표와 함께 집행관에게 제출하는 방법으로 제공합니다. 매각 절차가 종결된 후 집행관은 최고가 매수신고인이나 차순위매수신고인 이외의 매수신청인에게는 즉시 매수 보증금을 반환해 줍니다.

더 많은 내용을 알고 싶다면 경매마당 학습하기 코너에 준비된 용어설명을 이용해보세요.

경매정보는 법원자료와 일치하도록 하였으나 권리사항변동, 입력착오 등의 원인으로 사실과 다를 수 있습니다. 이용약관에 의거 면책조건으로 제공됨을 알리며, 경매입찰시 반드시 관련 공부를 재확인하시기 바랍니다.

PC버전으로 보기