전북특별자치도 전주시 덕진구 만성동 1360-1
전북특별자치도 전주시 덕진구 만성동 1360-1
구분건물 현황도가 게시되어 있지 않고, 호수표시가 부착되어 있지 않아 주의 요함. 공실임.
해당사항없음
해당사항없음
구분건물 현황도가 게시되어 있지 않고, 호수표시가 부착되어 있지 않아 주의 요함. 공실임.
구분건물 현황도가 게시되어 있지 않고 각 구분건물에 대한 호수 표시가 부착되어 있지 아니하여 본건 임대업무를 대행하고 있다는 성명 미상의 공인중개사에게 전화로 전유부분의 위치를 확인하여 사진 촬영하였으므로 착오가 있을 수 있으므로 절차 진행시 주의 요함
[목록6]현장에서 이해관계인을 만나지 못하여 점유관계를 알 수는 없으나 상가건물임대차 조회 결과 사업자등록자 없음
| 매각일자 / 결과 | 응찰자수 | 최고가 금액/응찰자명 | 차순위 금액 | 
|---|
| 번호 | 주소 | 상태/입찰일 | 물건내역 | 
|---|---|---|---|
| 1 | 전라북도 전주시 덕진구 만성서로 92, 1층102호 (만성동,주건축물제1동) | 
                                    
                                        배당종결                                    
                                     2021.03.29  | 
                                바로가기 | 
| 2 | 전라북도 전주시 덕진구 만성서로 92, 1층106호 (만성동,주건축물제1동) | 
                                    
                                        배당종결                                    
                                     2021.03.29  | 
                                바로가기 | 
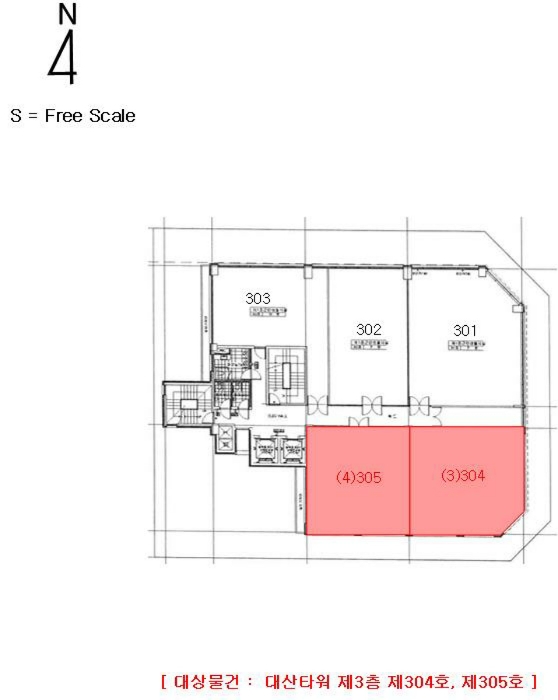
| 3 | 전라북도 전주시 덕진구 만성서로 92, 3층304호 (만성동,주건축물제1동) | 
                                    
                                        배당종결                                    
                                     2021.02.08  | 
                                바로가기 | 
| 4 | 전라북도 전주시 덕진구 만성서로 92, 3층305호 (만성동,주건축물제1동) | 
                                    
                                        배당종결                                    
                                     2021.02.08  | 
                                바로가기 | 
| 5 | 전라북도 전주시 덕진구 만성서로 92, 5층502호 (만성동,주건축물제1동) | 
                                    
                                        배당종결                                    
                                     2021.03.29  | 
                                바로가기 | 
| 
                                    6                                     본건  | 
                                전라북도 전주시 덕진구 만성서로 92, 5층503호 (만성동,주건축물제1동) | 
                                    
                                        배당종결                                    
                                     2021.03.29  | 
                                - | 
등기열람(월5회), 임차인 내역, 권리분석
현황조사, 감정평가, 실거래가
...
※ 건축물 도면은 ‘건축물 대장의 기재 및 관리에 관한 규칙’ 에 따라 현재 경매가 진행중인 물건에만 제공됩니다.
※ 지분물건의 경우 면적은 지분에 해당하는 면적이 아닌 전체 면적으로 표기됩니다
1.구분건물감정평가요항표 1) 위치 및 주위환경 대상물건은 전라북도 전주시 덕진구 만성동 소재 "전주지방검찰청" 북측 인근에 위치하고, 주위는 만성도시개발구역내 점포지대로서 인근으로 공공기관 및 학교, 아파트단지가 소재 하며 상업성은 보통임. 2) 교통상황 제반 차량의 통행 및 출입이 자유롭고 시내버스 승강장이 인근에 소재하며, 간선도로에서의 접근성 등 제반 교통여건은 무난한 편임. 3) 건물의 구조 철근콘크리트구조 (철근)콘크리트지붕 5층으로서,외벽: 몰탈위 돌붙임 및 강화유리 마감 등,내벽: 몰탈위 페인팅 및 타일마감 등,창호: 강화유리임. 4) 이용상태 상가(공실)로 이용중임. 5) 설비내역 위생설비 및 승강기설비, 소화전설비, 지하주차장 등 되어 있음. 6) 토지의 형상 및 이용상태 가장형 토지로서 상가부지로 이용중임. 7) 인접 도로상태등 북서측으로 노폭 약 25미터, 북동측으로 노폭 약 15미터, 남동측으로 노폭 약 10미터 정도의 아스팔트 포장도로에 3면이 접하고 노면 상태는 양호한 편임. 8) 토지이용계획 및 제한상태 준주거지역(2018-02-26), 제1종지구단위계획구역(2017-02-28)(전주 만성 도시개발사업), 소로1류(폭 10M-12M)(2017-02-28)(접합), 중로1류(폭 20M-25M)(2017-02-28)(접합), 중로 2류(폭 15M-20M)(2017-02-28)(접합), 가축사육제한구역(2019-12-27)<가축분뇨의 관리 및 이용에 관한 법률>, 상대보호구역<교육환경 보호에 관한 법률>, 상대보호구역(2020-01-03) (전주양현중학교)<교육환경 보호에 관한 법률>, 절대보호구역<교육환경 보호에 관한 법률>, 준보전산지<산지관리법>임. 9) 공부와의 차이 해당사항 없음. 10) 기타참고사항(임대관례 및 기타) 임대관계는 미상임.
| 거리 | 단지명 | 공급년월 | 세대 수 | 
|---|
| 등기일자 | 권리종류 | 권리자/채권액 | 권리 | 
|---|---|---|---|
| 
                                        2019-05-31 | 
                                    소유자 | 유한회사대산디앤씨 (소유자) | |
| 단독소유 | - | ||
| 
                                        2019-05-31 (을1)  | 
                                    근저당권설정 | 이서농업협동조합 | 소멸 | 
| 말소기준 등기 | 120,000,000원 | ||
| 
                                        2020-01-31 (을2)  | 
                                    근저당권설정 | 김미정 | 소멸 | 
| - | 300,000,000원 | ||
| 
                                        2020-01-31 (을2)  | 
                                    근저당권설정 | 김영선 | 소멸 | 
| - | 150,000,000원 | ||
| 
                                        2020-03-25 (갑4)  | 
                                    가압류 | 이서농업협동조합 | 소멸 | 
| - | 9,458,344원 | ||
| 
                                        2020-03-25 (갑5)  | 
                                    
                                        임의경매개시결정 (2020타경2842)  | 
                                    이서농업협동조합 | 소멸 | 
| 경매기입 등기 | 925,364,967원 | 
| 구분 | 법원 | 사건번호 | 작성일자 | 매각명세서 | 
|---|---|---|---|---|
| 1 | 전주지법 | 2020타경2842[6] | 2021.01.11 | 
| 구분 | 법원/ 사건번호  | 
                                    작성일자 | 매각명세서 | 
|---|---|---|---|
| 1 | 
                                            전주지법 2020타경2842[6]  | 
                                        2021.01.11 | 
해당사항없음
해당사항없음
구분건물 현황도가 게시되어 있지 않고, 호수표시가 부착되어 있지 않아 주의 요함. 공실임.
| 임차인 | 보증금/차임 | 전입/확정/배당 | 대항력 | 
|---|---|---|---|
| 매각물건명세서상 임차인이 존재하지 않습니다. | |||
2020년04월07일16시40분
구분건물 현황도가 게시되어 있지 않고 각 구분건물에 대한 호수 표시가 부착되어 있지 아니하여 본건 임대업무를 대행하고 있다는 성명 미상의 공인중개사에게 전화로 전유부분의 위치를 확인하여 사진 촬영하였으므로 착오가 있을 수 있으므로 절차 진행시 주의 요함
[목록6]현장에서 이해관계인을 만나지 못하여 점유관계를 알 수는 없으나 상가건물임대차 조회 결과 사업자등록자 없음
| 확인일자 | 미납금액 | 관리소번호 | 메모 | 
|---|
※ 해당 정보는 참고용으로 제공되며 입찰 전 반드시 관리사무소를 통해 직접 확인하시기 바랍니다.
전주지방법원 본원
경매2계 : 063-259-5438
전북 전주시 덕진구 만성동 1258-3
Q. 대법원경매가 무엇인가요?
경매란 채무자(빌린 자)가 채무를 갚지 않았을 때 채권자(빌려준 자)의 신청으로 대법원이 채무자의 재산을 대신 매각하는 과정을 말합니다.
                        법원은 감정인에게 자산을 평가하게 한 후, 최저가를 정하여 그 금액 이상으로 입찰한 입찰자 중 최고가 매수인을 결정합니다.
                        대법원의 주관하에 국민 모두가 참여할 수 있습니다.
Q. 경매 입찰은 어떻게 하나요?
Q. 용어가 너무 어려워서 내용을 이해하기 어려워요
경매정보는 법원자료와 일치하도록 하였으나 권리사항변동, 입력착오 등의 원인으로 사실과 다를 수 있습니다. 이용약관에 의거 면책조건으로 제공됨을 알리며, 경매입찰시 반드시 관련 공부를 재확인하시기 바랍니다.
PC버전으로 보기