알림

알림 내역

알림 신청내역/취소

대법원
물건내역
사건내역
기일내역
송달내역
현황조사
지도
사진보기
문서
매각기일공고문
매각물건명세서
감정평가서 M
등기부등본
전입세대열람원 M
건축물대장 M
분석
예상배당표 M
수익률분석 M
입찰가분석 M
조회수분석 M
인근지역통계 M
사이트
대법원
국토부 실거래가
토지이음
아실
네이버 단지정보
네이버 매물정보
호갱노노
부동산플래닛
로고 수원지방법원 안산지원 [경매3계] 2024타경62628[5]
경기도 시흥시 은계남길 32 (은행동), 2층에이211(지산211)호 (은행동,성강해오름파크타워)

경기 시흥시 은행동 672-2

주소복사
경매구분 임의경매
용도 공장
토지 45.1㎡(13.64평)
건물 129.6㎡(39.2평)
감정가 446,000,000원
최저가 218,540,000원
보증금 21,854,000원 (10%)
청구액 2,737,153,352원
개시결정 2024년 07월 15일
감정일 2024년 07월 23일
배당종기 2024년 08월 19일
매각일 2025년 08월 21일
2024타경62628[5]
2024타경62628[5]
2024타경62628[5]
2024타경62628[5]
2024타경62628[5]
2024타경62628[5]
2024타경62628[5]
2024타경62628[5]
2024타경62628[5]
2024타경62628[5]
2024타경62628[5]
2024타경62628[5]
2024타경62628[5]
2024타경62628[5]
2024타경62628[5]
2024타경62628[5]
2024타경62628[5]
2024타경62628[5]
감정가
4억4600만원
1137만7551원/평
낙찰가 33%
3억원
배당종결 2025년 08월 21일
유찰 2회
유찰 2회
경매구분 임의경매
용도 공장
토지 45.1㎡(13.64평)
건물 129.6㎡(39.2평)
감정가 446,000,000원
최저가 218,540,000원
보증금 21,854,000원 (10%)
청구액 2,737,153,352원
개시결정 2024년 07월 15일
감정일 2024년 07월 23일
배당종기 2024년 08월 19일
매각일 2025년 08월 21일
배당종결 2025년 08월 21일

당사자 내역

채무자겸소유자 파OOOOOOOOOOOOOOOOOOOOO
채권자 유OOOOOOOOOOOOOOOOOOOOOOOOOOOOOO
채권자 배OO
근저당권자 유OOOOOOOOOOOOOOOOOOOOOOOOOOOOOO
가압류권자 배OO
가압류권자 중OOOOO
교부권자 국OOOOOOOOOOOOO
교부권자 시OO
배당요구권자 배OOOOOOOOOOO
교부권자 국OOOOOOOOOOOO

기일 내역

2025.10.02(16:00)
납부
2025.08.28(14:00)
최고가매각허가결정
2025.08.21(10:30)
3억원 매각
2억1854만원 최저가
2025.07.03(10:30)
3억1220만원 유찰
2025.05.29(10:30)
4억4600만원 유찰

매각공고

물건 비고(공고문)

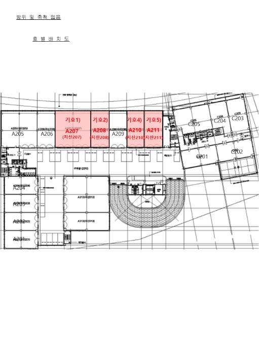
①인접호수(207호~210호)들과 벽체 구분 없이 일체로 `가구 제조공장`으로 이용중임 ②인접호수(207호~210호)들과 일체로 사용하기 위하여 경계벽이 철거되었으나 구조상 독립성이 있고, 독립성의 상실은 일시적인 것으로 복원이 가능하다는 감정평가사의 2025.02.17.자 사실조회 회신이 제출되어 있음

물건 비고(매각 명세서)

1인접호수(207호~210호)들과 벽체 구분 없이 일체로 `가구 제조공장`으로 이용중임
2인접호수(207호~210호)들과 일체로 사용하기 위하여 경계벽이 철거되었으나 구조상 독립성이 있고, 독립성의 상실은 일시적인
것으로 복원이 가능하다는 감정평가사의 2025.02.17.자 사실조회 회신이 제출되어 있음

현황 조사(현황 조사서)

본건 부동산은 가구 제조 공장으로 208호와 210호 출입문 옆에 가죽, 천 등 원자재가 쌓여있음.

점유 조사(현황 조사서)

[목록5]1. 본건 부동산에 현황조사차 방문하였으나 폐문으로 소유자 및 점유자 등을 만나지 못하여 점유관계를 확인할 수 없었음.(안내문 부착)
2. 별지 전입세대확인서, 상가건물임대차 현황서 및 외국인체류확인서상 각 등재자 없음.

매각결과+

매각일자 / 결과 응찰자수 최고가 금액/응찰자명 차순위 금액

가장 빠른 경매 정보 플랫폼 경매마당
남들보다 먼저 정보를 선점하세요

간단한 로그인 후 바로 이용 가능합니다

bolt 대법원 보다 빠른 물건 정보
verified 가장 많은 경매 물건 제공
trending_up 월 5회 등기부 무료 열람

현황정보

매각목록

부동산 현황

1) 위치 및 주위환경 본건은 경기도 시흥시 은행동 소재 "검바위초등학교" 남측 인근에 위치하고, 주변은 지식산업센터, 아파트단지, 근린생활시설, 학교 등이 혼재하는 지역으로 일반적인 주위환경은 보통임. 2) 교통상황 본건까지 차량접근이 가능하고, 인근에 버스정류장 등이 소재하는 등 제반 교통상황은 보통임. 3) 건물의 구조 본건은 철근콘크리트구조 (철근)콘크리트지붕 9층 건 내 2층에이207(지산207)호 외 3개호로서, 외벽 : 석재붙임 마감 등 창호 : 알루미늄 창호 등임. 4) 이용상태 본건은 공히 공장(지식산업센터)로 이용중임. 5) 설비내역 본건은 기본적인 급배수/위생설비, 승강기설비, 소화설비, 냉난방설비 등이 되어있음. 6) 토지의 형상 및 이용상태 본건은 2필지 일단의 사다리형 평지로 공장(지식산업센터) 부지 등으로 이용중임. 7) 인접 도로상태등 본건 북측으로 폭 약 20M 포장도로, 동측으로 보행자전용도로에 각각 접하고 있음. 8) 토지이용계획 및 제한상태 본건은 기호 ①(은행동 672-2번지)는 준주거지역, 지구단위계획구역, 중로1류(폭 20m-25m)(접합), 가축사육제한구역, 공공주택지구(국토해양부 제2012-187호), 상대보호구역, 상대보호구역(2016-06-22), 상대보호구역(2016-06-22)(정화구역 해당여부는 교육지원청으로 직접 문의(전화031-488-2488)하여야 함), 절대보호구역(2013-07-18), 과밀억제권역이고, 기호 ②(은행동 672-3번지)는 준주거지역, 지구단위계획구역, 소로1류(폭 10m-12m)(2021-04-01)(접합), 중로1류(폭 20m-25m)(접합), 가축사육제한구역, 공공주택지구(국토해양부 제2012-187호), 상대보호구역, 상대보호구역(2016-06-22), 상대보호구역(2016-06-22)(정화구역 해당여부는 교육지원청으로 직접 문의(전화031-488-2488)하여야 함), 절대보호구역(2013-07-18), 과밀억제권역임. 9) 공부와의 차이 -- 10) 기타참고사항(임대관례 및 기타) - 본건의 임대관계 미상임. - 본건 현장 방문시 관계인의 폐문부재로 내부 현황조사를 하지 못한 바, 내부구조 및 이용상황 등은 집합건축물대장 상 현황도면 및 외관탐문 등에 의하여 표준적인 상황을 기준하였음. - 본건 현장조사시 탐문조사에 따르면 본건 목록 기호 1)(에이207(지산207)호), 2)(에이208(지산208)호), 4)(에이210(지산210)호), 5)(에이211(지산211)호)와 본건 목록에 포함되지 아니한 에이209(지산209)호는 별개의 구분건물로 등재되어 있으나, 벽체 구분 없이 일체로 이용중인 것으로 조사되었으나, 이는 일시적인 용도 및 상태로 판단되는 바, 경매진행시 참고하시기 바람.

주변 입주 예정

거리 단지명 공급년월 세대 수
※ 해당 자료는 한국부동산원 청약홈 자료에 근거하며, 인근 5km 이내의 물건을 기준으로 산정되었습니다.

등기

등기부현황

채권합계 3,441,390,000원(2건)
등기일자 권리종류 권리자/채권액 권리
2021-07-09
소유자 서OOOOOOOO OO
단독소유 -
2021-07-09
(을3)
근저당권설정 중OOOOO OO
말소기준 등기 3,240,000,000원
2024-06-24
(갑7)
가압류 중OOOOO OO
- 201,394,784원
2024-07-15
(갑8)
임의경매개시결정
(2024타경62628)
중OOOOO OO
경매기입 등기 2,737,153,352원
더보기
※ 신규 발급등기의 분석자료 반영에는 최대 1일까지 소요될수 있습니다.(등기분석,임차인분석,분석노트 등)

임차인

매각물건 명세서

구분 법원 사건번호 작성일자 매각명세서
1 안산지원 2024타경62628[5] 2025. 4. 24.
구분 법원/
사건번호
작성일자 매각명세서
1 안산지원
2024타경62628[5]
2025. 4. 24.

물건 비고(매각 명세서)

1인접호수(207호~210호)들과 벽체 구분 없이 일체로 `가구 제조공장`으로 이용중임
2인접호수(207호~210호)들과 일체로 사용하기 위하여 경계벽이 철거되었으나 구조상 독립성이 있고, 독립성의 상실은 일시적인
것으로 복원이 가능하다는 감정평가사의 2025.02.17.자 사실조회 회신이 제출되어 있음

임차인현황

임차인 보증금/차임 전입/확정/배당 대항력
매각물건명세서상 임차인이 존재하지 않습니다.

현황 조사서

조사일시

2024년07월25일13시44분

부동산의 현황

본건 부동산은 가구 제조 공장으로 208호와 210호 출입문 옆에 가죽, 천 등 원자재가 쌓여있음.

점유 조사

[목록5]1. 본건 부동산에 현황조사차 방문하였으나 폐문으로 소유자 및 점유자 등을 만나지 못하여 점유관계를 확인할 수 없었음.(안내문 부착)
2. 별지 전입세대확인서, 상가건물임대차 현황서 및 외국인체류확인서상 각 등재자 없음.

미납관리비 조사내역

확인일자 미납금액 관리소번호 메모

※ 해당 정보는 참고용으로 제공되며 입찰 전 반드시 관리사무소를 통해 직접 확인하시기 바랍니다.

시세분석

인근 낙찰사례

기타

전문가

관할법원 (입찰장소)

수원지방법원 안산지원

경매3계 : 031-481-1114

경기 안산시 단원구 고잔동 711 주소복사

Q&A

Q. 대법원경매가 무엇인가요?누구나 입찰에 참여할 수 있나요?

경매채무자(빌린 자)가 채무를 갚지 않았을 때 채권자(빌려준 자)의 신청으로 대법원이 채무자의 재산을 대신 매각하는 과정을 말합니다.

법원은 감정인에게 자산을 평가하게 한 후, 최저가를 정하여 그 금액 이상으로 입찰한 입찰자 중 최고가 매수인을 결정합니다.

대법원의 주관하에 국민 모두가 참여할 수 있습니다.

Q. 경매 입찰은 어떻게 하나요?누구나 입찰에 참여할 수 있나요?

1. 입찰하시고자 하는 경매물건을 정하신 후, 입찰하시고자 하는 입찰가를 최저가 이상으로 정합니다.

2. 해당 물건의 매각기일에 직접 관할법원에 방문하셔서 법원내에 비치된 입찰서를 작성하신 후 입찰하시면 됩니다.

TIP! 법원에 가실 때에는 입찰보증금(최저가의 10~30%)과 신분증을 지참하여 방문하세요.

Q. 용어가 너무 어려워서 내용을 이해하기 어려워요누구나 입찰에 참여할 수 있나요?

매각기일
매각기일은 경매 법원이 부동산에 대하여 매각 입찰을 진행하는 날을 말합니다.

유찰
매각 기일에 매수하고자 하는 사람이 없어 매각되지 않아 무효가 되는 것을 유찰이라고 합니다.

최저 매각 가격
최초 경매를 진행할때 감정인이 평가한 가격을 기준으로 책정한 금액이며 입찰자는 최저 매각 가격과 동일하거나 이상의 금액으로 입찰해야 합니다. 매각 기일에 있어 입찰자가 없어 유찰되면 통상 20~30% 저감된 금액이 다음 최저 매각 가격이 됩니다.

매수 보증금
경매 물건을 매수하고자 하는사람은 최저 매각 가격의 10분의 1(다르게 정해질 수 있음)에 해당하는 보증금액을 입찰표와 함께 집행관에게 제출하는 방법으로 제공합니다. 매각 절차가 종결된 후 집행관은 최고가 매수신고인이나 차순위매수신고인 이외의 매수신청인에게는 즉시 매수 보증금을 반환해 줍니다.

더 많은 내용을 알고 싶다면 경매마당 학습하기 코너에 준비된 용어설명을 이용해보세요.

경매정보는 법원자료와 일치하도록 하였으나 권리사항변동, 입력착오 등의 원인으로 사실과 다를 수 있습니다. 이용약관에 의거 면책조건으로 제공됨을 알리며, 경매입찰시 반드시 관련 공부를 재확인하시기 바랍니다.

PC버전으로 보기