알림

알림 내역

알림 신청내역/취소

로고 광주지방법원 본원 [경매3계] 2023타경84695[5]
전라남도 나주시 상야1길 7, 제4층 제406호 (빛가람동,예가람타워)

전남 나주시 빛가람동 196-3

주소복사
경매구분 임의경매
용도 상가
토지 -
건물 217.94㎡(65.9평)
감정가 401,000,000원
최저가 143,718,000원
보증금 14,380,000원 (10%)
청구액 2,193,186,541원
개시결정 2023년 12월 21일
감정일 2024년 01월 09일
배당종기 2024년 03월 18일
매각일 2025년 04월 03일
2023타경84695[5]
2023타경84695[5]
2023타경84695[5]
2023타경84695[5]
2023타경84695[5]
2023타경84695[5]
2023타경84695[5]
2023타경84695[5]
2023타경84695[5]
2023타경84695[5]
2023타경84695[5]
2023타경84695[5]
2023타경84695[5]
2023타경84695[5]
2023타경84695[5]
2023타경84695[5]
2023타경84695[5]
2023타경84695[5]
2023타경84695[5]
2023타경84695[5]
2023타경84695[5]
2023타경84695[5]
2023타경84695[5]
2023타경84695[5]
2023타경84695[5]
2023타경84695[5]
2023타경84695[5]
2023타경84695[5]
2023타경84695[5]
2023타경84695[5]
2023타경84695[5]
2023타경84695[5]
2023타경84695[5]
2023타경84695[5]
2023타경84695[5]
감정가
4억100만원
낙찰가 63%
1억4771만9000원
납부 2025년 04월 03일
유찰 4회
유찰 4회
경매구분 임의경매
용도 상가
토지 -
건물 217.94㎡(65.9평)
감정가 401,000,000원
최저가 143,718,000원
보증금 14,380,000원 (10%)
청구액 2,193,186,541원
개시결정 2023년 12월 21일
감정일 2024년 01월 09일
배당종기 2024년 03월 18일
매각일 2025년 04월 03일
납부 2025년 04월 03일

당사자 내역

채무자겸소유자 유OOOOOOOOOOOOOOOOOOOOOOOOOOOOOO
채권자 나OOOOOOOOOOO
교부권자 광OOOOOOO
교부권자 나OO
교부권자 나OOOO
교부권자 광OOOOOOO
압류권자 국OOOOOOOOOOOO
압류권자 나OOOO
전세권자 중OOOOOOOOO
가압류권자 김OO
압류권자 나OO
임차인 중OOOOOOOOOOOOOOOOOOOO
임차인 유OO
임차인 한OOOOOOOO
임차인 (주)OO,OOO
임차인 (주)OO,OOO
임차인 (주)OOO,OOO
임차인 (주)OO,OOO
임차인 (주)OOOOO,OOO
교부권자 국OOOOOOOOOOOO

기일 내역

2025.05.08(16:00)
납부
2025.04.10(16:00)
최고가매각허가결정
2025.04.03(10:00)
1억4771만9000원 매각
1억4371만8000원 최저가
2025.02.20(10:00)
1억7964만8000원 유찰
2024.11.28(10:00)
기일변경
2024.10.17(10:00)
2억2456만원 유찰
2024.09.05(10:00)
2억8070만원 유찰
2024.07.25(10:00)
4억100만원 유찰

물건 비고(공고문)

-공부상 일반음식점, 갓블레스-뷰티드살롱, 갓블레스 미용학 원으로 이용중임.

물건 비고(매각 명세서)

-공부상 일반음식점, 갓블레스-뷰티드살롱, 갓블레스 미용학원 으로 이용중임.

매각결과+

매각일자 / 결과 응찰자수 최고가 금액/응찰자명 차순위 금액

동일사건 물건목록

번호 주소 상태/입찰일 물건내역
1 전라남도 나주시 상야1길 7, 제4층 제401호 (빛가람동,예가람타워) 납부
2025.04.03
바로가기
2 전라남도 나주시 상야1길 7, 제4층 제403호 (빛가람동,예가람타워) 매각
2025.10.30
바로가기
3 전라남도 나주시 상야1길 7, 제4층 제404호 (빛가람동,예가람타워) 매각
2025.10.30
바로가기
4 전라남도 나주시 상야1길 7, 제4층 제405호 (빛가람동,예가람타워) 매각
2025.10.30
바로가기
5
본건
전라남도 나주시 상야1길 7, 제4층 제406호 (빛가람동,예가람타워) 납부
2025.04.03
-
6 전라남도 나주시 상야1길 7, 제4층 제407호 (빛가람동,예가람타워) 납부
2025.04.03
바로가기
7 전라남도 나주시 상야1길 7, 제4층 제408호 (빛가람동,예가람타워) 납부
2025.04.03
바로가기
부동산
등기
임차인
그 외

부동산

매각목록

※ 건축물 도면은 ‘건축물 대장의 기재 및 관리에 관한 규칙’ 에 따라 현재 경매가 진행중인 물건에만 제공됩니다.
※ 지분물건의 경우 면적은 지분에 해당하는 면적이 아닌 전체 면적으로 표기됩니다

감정평가

감정평가서 요약

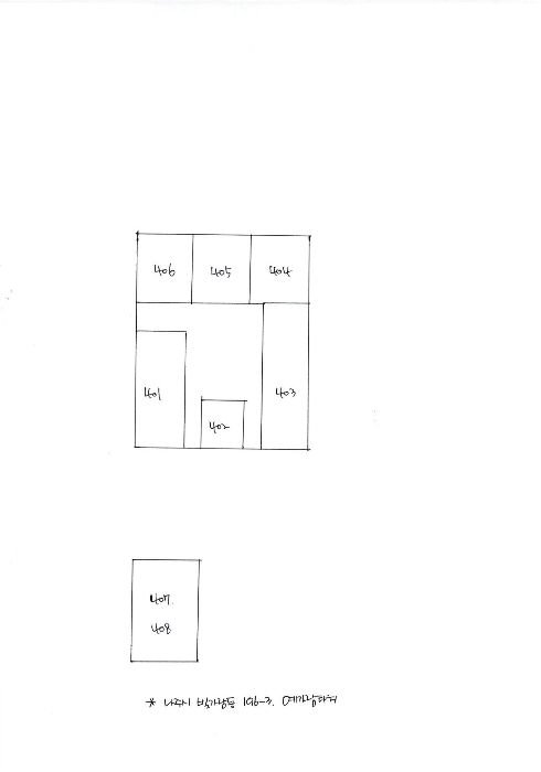
1) 위치 및 주위환경 본건은 전라남도 나주시 빛가람동 소재 "한국전력공사본사" 남측 인근에 위치하고, 주변은 점포, 업무용 건물 등이 소재하는 상가지대임. 2) 교통상황 본건 건물까지 제반차량 접근이 가능하고, 인근에 간선도로 및 버스정류장이 소재하고 있어 일반적인 교통상황은 무난함. 3) 건물의 구조 철근콘크리트구조 (철근)콘크리트평슬래브지붕 5층 건물 내 제4층 제401호, 제403호, 제404호, 제405호, 제406호, 제407호, 제408호로서 외벽 : 적벽돌붙임, 복합판넬, 강화유리 등 마감 내벽 : 판넬, 수성페인트, 강화유리 등 창호 : 새시창임. 4) 이용상태 일련번호 1(401호) : 공실 일련번호 2(403호) : 피카딜리 에이 앤 피(주) 일련번호 3(404호), 일련번호 4(405호) : 한전MCS노동조합, 한전엠씨에스(주) 일련번호 5(406호) : 갓블레스·뷰티드살롱, 갓블레스 미용학원 일련번호 6(407호), 일련번호 7(408호) : 중소벤처기업진흥공단 전남청년창업사관학교 로 각각 이용중임. 5) 설비내역 위생 및 급배수설비, 승강기설비, 에스컬레이트설비, 소화전설비, 화재탐지 및 경보설비, 스프링쿨러설비 등이 되어 있음. 6) 토지의 형상 및 이용상태 가로장방형 평지로서 상업용 건물부지로 이용중임. 7) 인접 도로상태등 본건 서측으로 왕복8차로, 남측 및 서측으로 왕복4차로의 아스팔트 포장도로에 접함. 8) 토지이용계획 및 제한상태 도시지역, 일반상업지역, 지구단위계획구역, 대로1류(폭 35m-40m)(접합), 중로1류(폭 20m- 25m)(2015-03-27), 가축사육제한구역(모든가축제한구역_빛가람동1,500m)<가축분뇨의 관리 및 이용에 관한 법률>, 혁신도시개발예정지구<혁신도시 조성 및 발전에 관한 특별법> 9) 공부와의 차이 일련번호 1-5(401호, 403호-406호)는 공부상 일반음식점이나 일련번호 1(401호) : 공실, 일련번호 2(403호) : 피카딜리에이앤피(주), 일련번호 3(404호), 일련번호 4(405호) : 한전MCS노동조합, 한전엠씨에스(주), 일련번호 5(406호) : 갓블레스·뷰티드살롱, 갓블레스 미용학원으로 이용중 임 일련번호 6, 7(407호, 408호)는 공부상 사무소이나 중소벤처기업진흥공단 전남청년창업사관 학교로 이용중임. 10) 기타참고사항(임대관례 및 기타) --

주변 입주 예정

거리 단지명 공급년월 세대 수
※ 해당 자료는 한국부동산원 청약홈 자료에 근거하며, 인근 5km 이내의 물건을 기준으로 산정되었습니다.

등기

등기부현황

채권합계 2,703,000,000원(1건)
등기일자 권리종류 권리자/채권액 권리
2017-02-07
(을1)
근저당권설정 나주배원예농업협동조합 소멸
말소기준 등기 2,703,000,000원
2023-01-31
(갑5)
압류 나주세무서장 소멸
- -
2023-05-22
(갑8)
압류 나주시 소멸
- -
2023-06-07
(갑9)
압류 나주세무서장 소멸
- -
2023-12-21
(갑12)
임의경매개시결정
(2023타경84695)
나주배원예농업협동조합 소멸
경매기입 등기 2,193,186,541원
더보기 더보기
※ 신규 발급등기의 분석자료 반영에는 최대 1일까지 소요될수 있습니다.(등기분석,임차인분석,분석노트 등)

임차인

매각물건 명세서

구분 법원 사건번호 작성일자 매각명세서
1 광주지법 2023타경84695[5] 2024.11.14
2 광주지법 2023타경84695[5] 2024.06.03
구분 법원/
사건번호
작성일자 매각명세서
1 광주지법
2023타경84695[5]
2024.11.14
2 광주지법
2023타경84695[5]
2024.06.03

물건 비고(매각 명세서)

-공부상 일반음식점, 갓블레스-뷰티드살롱, 갓블레스 미용학원 으로 이용중임.

임차인현황

임차인 보증금/차임 전입/확정/배당 대항력
[현황조사]
유진아
(점포임차인)
점유부분:
전부
보증:
10,000,000
차임:
월770,000
사업: 2019-01-30
확정: 2023-06-26
배당: -
없음

현황 조사서

조사일시

2024년09월05일15시00분

부동산의 현황

-

점유 조사

-

조사일시

2024년01월04일11시30분 / 2024년01월05일10시30분 / 2024년01월08일10시10분 / 2024년01월17일14시40분 / 2024년02월01일16시30분

부동산의 현황

-

점유 조사

-

미납관리비 조사내역

확인일자 미납금액 관리소번호 메모

※ 해당 정보는 참고용으로 제공되며 입찰 전 반드시 관리사무소를 통해 직접 확인하시기 바랍니다.

시세

전문가

그외

관할법원 관할법원 (입찰장소)

광주지방법원 본원

경매3계 : 062-239-1114

광주 동구 지산동 342-1 주소복사

Q&A Q&A

Q. 대법원경매가 무엇인가요?누구나 입찰에 참여할 수 있나요?

경매채무자(빌린 자)가 채무를 갚지 않았을 때 채권자(빌려준 자)의 신청으로 대법원이 채무자의 재산을 대신 매각하는 과정을 말합니다.

법원은 감정인에게 자산을 평가하게 한 후, 최저가를 정하여 그 금액 이상으로 입찰한 입찰자 중 최고가 매수인을 결정합니다.

대법원의 주관하에 국민 모두가 참여할 수 있습니다.

Q. 경매 입찰은 어떻게 하나요?누구나 입찰에 참여할 수 있나요?

1. 입찰하시고자 하는 경매물건을 정하신 후, 입찰하시고자 하는 입찰가를 최저가 이상으로 정합니다.

2. 해당 물건의 매각기일에 직접 관할법원에 방문하셔서 법원내에 비치된 입찰서를 작성하신 후 입찰하시면 됩니다.

TIP! 법원에 가실 때에는 입찰보증금(최저가의 10~30%)과 신분증을 지참하여 방문하세요.

Q. 용어가 너무 어려워서 내용을 이해하기 어려워요누구나 입찰에 참여할 수 있나요?

매각기일
매각기일은 경매 법원이 부동산에 대하여 매각 입찰을 진행하는 날을 말합니다.

유찰
매각 기일에 매수하고자 하는 사람이 없어 매각되지 않아 무효가 되는 것을 유찰이라고 합니다.

최저 매각 가격
최초 경매를 진행할때 감정인이 평가한 가격을 기준으로 책정한 금액이며 입찰자는 최저 매각 가격과 동일하거나 이상의 금액으로 입찰해야 합니다. 매각 기일에 있어 입찰자가 없어 유찰되면 통상 20~30% 저감된 금액이 다음 최저 매각 가격이 됩니다.

매수 보증금
경매 물건을 매수하고자 하는사람은 최저 매각 가격의 10분의 1(다르게 정해질 수 있음)에 해당하는 보증금액을 입찰표와 함께 집행관에게 제출하는 방법으로 제공합니다. 매각 절차가 종결된 후 집행관은 최고가 매수신고인이나 차순위매수신고인 이외의 매수신청인에게는 즉시 매수 보증금을 반환해 줍니다.

더 많은 내용을 알고 싶다면 경매마당 학습하기 코너에 준비된 용어설명을 이용해보세요.

경매정보는 법원자료와 일치하도록 하였으나 권리사항변동, 입력착오 등의 원인으로 사실과 다를 수 있습니다. 이용약관에 의거 면책조건으로 제공됨을 알리며, 경매입찰시 반드시 관련 공부를 재확인하시기 바랍니다.

PC버전으로 보기